15 440 000 Р 189 700 $ или 164 700

Информация о квартире

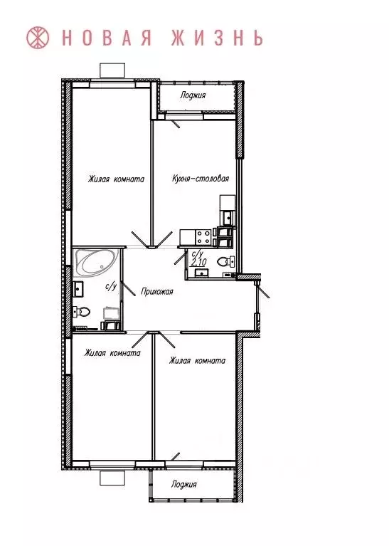
110 м2
Площадь
36 м2
Жилая
43 м2
Кухня
3
Комнаты
21
Этаж
27
Этажность
Развернуть
Агент
+7 (958) 734-80-06
Начать чат с агентом

3-к кв. Самарская область, Самара ул. Дыбенко, 5 (110.28 м)

Ипотечные программы:1. Семейная 3,5 ,2. Рассрочка 0 до конца строительства с первоначальным взносом 30 . Продаётся 3 комнатная квартира 419 в строящемся жилом комплексе Дом у Космопорта 2 ;. ЖК Дом у Космопортаасполагается в географическом центре города. И, в тоже время, вблизи четырех парков. Поблизости размещены 4 школы и 2 детских сада. Торговые центры Космопорт , Аврора Молл и центр мебели DOM . Остановки общественного транспорта и метро.Срок сдачи всего комплекса: II-кв. 2026Жилой комплекс Дом у Космопорта 2 это современный жилой комплекс, расположенный в самой высокой точке города Самара 142 м над уровнем моря. Всего 30 метров до новой школы и нового детского садика, плюс в шаговой доступности расположены еще 4 школы и 2 детcких caдa. Состоит из пяти 27-ти этажных секций с нежилыми помещениями на первых этажах, двух 2-х этажных нежилых секции и двумя уровнями подземной автопарковки, доступ к парковочной зоне из грузового лифта.Жилой комплекс представляет собой многосекционное монолитно-кирпичное здание. Застройщиком спроектированы квартиры с различными планировками: от одно- до трехкомнатных квартир, двухэтажные квартиры и квартиры с собственными верандами общей площадью от 44,8 до 155 кв.м. Для достижения максимальной эргономики спроектировано минимум перегородок, что позволит легко сделать свою квартиру мечты.Благоустройство прилегающей территории включает в себя организацию детских и спортивных площадок, зон отдыха и озеленение. Предусмотрены открытые гостевые парковки и подземный паркинг. В шаговой доступности находятся школы, детские сады, медицинские учреждения, аптеки и продовольственные магазины.Уникальные преимущества ЖК Дом у Космопорта 2:- Универсальные планировки;- Собственная экосистема ЖК;- Бесплатный Wi-Fi во дворе;- Велопарковка;- Витражное остекление лоджий;- Безбарьерная среда;- Видеонаблюдение и IP-домофония;- Подземный паркинг;- Двухуровневые квартиры;- Высокие потолки до 2,8 метров;- Светодиодные фонари на всей территории;- Благоустроенный двор;- Workout площадка;- Широкие лоджии;- 3 лифта производителя Otis в каждом подъезде (2 из них грузовые);- Индивидуальный узел учета тепла;- Разводка отопления по полу;- Грузовой лифт из паркинга;- Бесключевой доступ во двор;- Отделка на Ваш выбор;- Удобные входные группыСтроительство ведется в два этапа. Сдача 3 секции 2 квартал 2025 г.,

Читать полностью
    Позвонить Написать
    15 440 000 Р189 700 $ или 164 700
    Агент
    +7 (958) 734-80-06
    Начать чат с агентом
    Похожие предложения
    3-к кв. Самарская область, Самара ул. Дыбенко, 5 (110.28 м) - Фото 1
    3-к кв. Самарская область, Самара ул. Дыбенко, 5 (110.28 м) - Фото 2
    3-комнатная квартира, общая площадь 110м², жилая 36м², кухня 43м²

    Ипотечные программы:1. Семейная 3,5 ,2. Рассрочка 0 до конца строительства с первоначальным взносом 30 . Продаётся 3 комнатная квартира 423 в строящемся жилом комплексе Дом у Космопорта 2 ;. ЖК Дом у Космопортаасполагается в географическом центре...
    • 110 м²
    • 3-ком
    • 22/27 эт.
    15 440 000 Р
    Агент
    +7 (958) Показать номер
    Посмотреть контакты
    3-к кв. Самарская область, Самара проезд 4-й, 8А (109.1 м) - Фото 1
    3-к кв. Самарская область, Самара проезд 4-й, 8А (109.1 м) - Фото 2
    3-комнатная квартира, общая площадь 109м², жилая 32м², кухня 35м²

    Номер объекта: 96201Менеджер объекта: Шерер СергейСемейная ипотека под 6 МОРРИС - РЕШЕНИЯ ДЛЯ КОМФОРТНОГО ПРОЖИВАНИЯ.КВАРТИРЫ в ЧЕРНОВОЙ ОТДЕЛКЕ.Географический центр города с низкой плотностью населения, где есть вся необходимая инфраструктура.Своя частная,...
    • 109 м²
    • 3-ком
    • 16/16 эт.
    • монолит
    15 274 000 Р
    Агент
    +7 (958) Показать номер
    Посмотреть контакты
    3-к кв. Самарская область, Самара Ленинская ул. (93.7 м) - Фото 1
    3-к кв. Самарская область, Самара Ленинская ул. (93.7 м) - Фото 2
    3-комнатная квартира, общая площадь 93м², жилая 50м², кухня 15м²

    Номер объекта: 113828Менеджер объекта: Бурков ВасилийЦена со скидкой актуальна при 100 оплате.Продается 3-х комнатная квартира в ЖК И-ВОЛГА , строится в историческом центре города, недалеко от набережной реки Волги.-В ЖК предусмотрен двухуровневый...
    • 93 м²
    • 3-ком
    • 12/19 эт.
    15 932 400 Р
    Агент
    +7 (902) Показать номер
    Посмотреть контакты
    3-к кв. Самарская область, Самара ул. Ново-Садовая (дублер) (82.26 м) - Фото 1
    3-к кв. Самарская область, Самара ул. Ново-Садовая (дублер) (82.26 м) - Фото 2
    3-комнатная квартира, общая площадь 82м²

    Продаётся 3-комнатная квартира в строящемся доме (Корпус 1), срок сдачи: III-кв. 2027, общей площадью 82.26 кв.м., на 8 этаже. Новый жилой комплекс Высота от застройщика СЗ СПЕКТРСТРОЙасположен по адресу Самара, Ново-Садовая улица.
    • 82 м²
    • 3-ком
    • 8/19 эт.
    • панельный
    14 806 800 Р
    Агент
    +7 (902) Показать номер
    Посмотреть контакты
    3-к кв. Самарская область, Самара ул. Ново-Садовая (дублер) (82.26 м) - Фото 1
    3-к кв. Самарская область, Самара ул. Ново-Садовая (дублер) (82.26 м) - Фото 2
    3-комнатная квартира, общая площадь 82м²

    Продаётся 3-комнатная квартира в строящемся доме (Корпус 1), срок сдачи: III-кв. 2027, общей площадью 82.26 кв.м., на 6 этаже. Новый жилой комплекс Высота от застройщика СЗ СПЕКТРСТРОЙасположен по адресу Самара, Ново-Садовая улица.
    • 82 м²
    • 3-ком
    • 6/19 эт.
    • панельный
    14 806 800 Р
    Агент
    +7 (902) Показать номер
    Посмотреть контакты

    Не нашли подходящего объявления?

    Оставьте заявку, и наши риэлторы подберут квартиру в новостройке в районе Самары

    (0)