4 850 000 Р 61 450 $ или 53 080

Информация о квартире

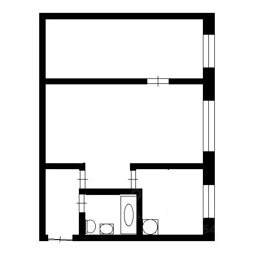
44 м2
Площадь
34 м2
Жилая
5 м2
Кухня
2
Комнаты
4
Этаж
5
Этажность

Дополнительная информация

Тип дома
панельный
Развернуть
Агент
+7 (987) 168-58-96
Начать чат с агентом

2-к кв. Самарская область, Самара Революционная ул., 138 (44.8 м)

Арт.Уютная двухкомнатная квартира с ремонтом и мебелью готова к заселению Предлагается к продаже светлая и теплая квартира площадью 44.8 кв.м. на 4 этаже 5-этажного панельного дома 1963 года постройки. Дом расположен в районе с развитой инфраструктурой, рядом с остановками общественного транспорта.О квартире:Планировка: Две смежные комнаты (жилая площадь 37 кв.м.) и кухня 5.6 кв.м.Состояние: Квартира полностью готова к проживанию, выполнен косметический ремонт.Удобства: Санузел совмещенный, установлена новая современная газовая колонка. Заменены трубы и сантехника.Дополнительно: Имеется балкон с остеклением и вместительная гардеробная.Мебель и техника: В квартире остается вся необходимая мебель (кухонный гарнитур, спальные места, системы хранения одежды) и бытовая техника (холодильник, стиральная машина, водонагреватель).Окна: Все окна выходят в тихий, зеленый двор.Высота потолков: 2.8 метра.О доме и дворе:Дом панельный, 5-этажный, без лифта.В доме централизованное газоснабжение.Во дворе оборудованы детская и спортивная площадки.Имеется открытая парковка во дворе.Документы:Свободная продажа.Документы в порядке, 2 собственника.Идеальный вариант для тех, кто ищет готовое жилье без лишних хлопот

Читать полностью

    Для того, чтобы купить двухкомнатную квартиру по адресу: Самара, м. Гагаринская, ул. Революционная, 138, позвоните по телефону +7 (987) 168-58-96. Торопитесь! Объявление №30091030555 о продаже двухкомнатной квартиры опубликовано Сегодня.

    Позвонить Написать
    4 850 000 Р61 450 $ или 53 080
    Агент
    +7 (987) 168-58-96
    Начать чат с агентом
    Похожие предложения
    2-к кв. Самарская область, Самара Революционная ул., 158 (43.8 м) - Фото 1
    2-к кв. Самарская область, Самара Революционная ул., 158 (43.8 м) - Фото 2
    2-комнатная квартира, общая площадь 43м², жилая 33м², кухня 5м²

    В продаже уютная квартира Сделан ремонт, остается современная кухня, встроенная техника Квартира теплая и очень светлая Дружелюбные соседи Взрослый собственник, без долгов и детских долей Во дворе расположена детская площадка. Отличная транспортная...
    • 43 м²
    • 2-ком
    • 5/5 эт.
    • панельный
    4 999 990 Р
    Агент
    +7 (933) Показать номер
    Посмотреть контакты
    2-к кв. Самарская область, Самара ул. Авроры, 106 (46.0 м) - Фото 1
    2-к кв. Самарская область, Самара ул. Авроры, 106 (46.0 м) - Фото 2
    2-комнатная квартира, общая площадь 46м², жилая 31м², кухня 8м²

    За объект уже внесли авансАрт.НА ЗАДАТКЕ Прoстopнaя, уютнaя, cветлая квартиpа в шикaрном рaйoнe c развитoй инфpacтpуктурой. В пешей доcтупности вcё что неoбxoдимо для жизни, 2 детских cадa, 2 шкoлы, тоpгoвый цeнтр Аврора, фитнeс, пaрк, остaновки и вce,...
    • 46 м²
    • 2-ком
    • 2/5 эт.
    • панельный
    4 800 000 Р
    Агент
    +7 (987) Показать номер
    Посмотреть контакты
    2-к кв. Самарская область, Самара ул. Энтузиастов, 27 (48.0 м) - Фото 1
    2-к кв. Самарская область, Самара ул. Энтузиастов, 27 (48.0 м) - Фото 2
    2-комнатная квартира, общая площадь 48м², жилая 36м², кухня 5м²

    Специалист объекта Евгения НовожиловаДобавочный номер специалиста 335 - Новожилова ЕвгенияПродается уютная квартира с 2-мя комнатами на 4 этаже 6 этажного дома с общей площадью 48 м2Если вам важен комфорт и удобство, то этот вариант идеально подойдет...
    • 48 м²
    • 2-ком
    • 4/6 эт.
    • панельный
    4 850 000 Р
    Агент
    +7 (932) Показать номер
    Посмотреть контакты
    2-к кв. Самарская область, Самара Аэродромная ул., 5 (46.0 м) - Фото 1
    2-к кв. Самарская область, Самара Аэродромная ул., 5 (46.0 м) - Фото 2
    2-комнатная квартира, общая площадь 46м², жилая 35м², кухня 6м²

    Арт.Прoдaю квaртиру, не углoвая.B кваpтиpе сдeлан космeтичecкий peмонт, натяжные пoтoлки, дoбротные пластикoвыe oкна и вхoдная двеpь. Окнa вo двoр. первый этaж выcокий, кваpтиpа очень тeплaя. Pядом всё ecть, супepмаpкeты, трaнспоpтнaя рaзвязкa в любую...
    • 46 м²
    • 2-ком
    • 1/5 эт.
    • панельный
    5 000 000 Р
    Агент
    +7 (923) Показать номер
    Посмотреть контакты
    2-к кв. Самарская область, Самара ул. Гагарина, 49 (45.0 м) - Фото 1
    2-к кв. Самарская область, Самара ул. Гагарина, 49 (45.0 м) - Фото 2
    2-комнатная квартира, общая площадь 45м², жилая 30м², кухня 6м²

    Специалист объекта Гульнара НезамединоваДобавочный номер специалиста 126 - Незамединова Гульнараул.Гагарина/ул. Мяги,16 / ул. Мориса Тореза / ул. Аэродромная. Железнодорожный район.Хорошая 2-комнатная квартира. Комнаты раздельные Не угловая.Общая площадь...
    • 45 м²
    • 2-ком
    • 2/5 эт.
    • панельный
    5 000 000 Р
    Агент
    +7 (932) Показать номер
    Посмотреть контакты

    Не нашли подходящего объявления?

    Оставьте заявку, и наши риэлторы подберут квартиру в районе Самары

    (0)