8 450 000 Р 107 100 $ или 92 480

Информация о квартире

65 м2
Площадь
35 м2
Жилая
14 м2
Кухня
2
Комнаты
5
Этаж
25
Этажность
Развернуть
Агент
+7 (919) 811-45-95
Начать чат с агентом

2-к кв. Самарская область, Самара ул. Советской Армии, 91 (65.7 м)

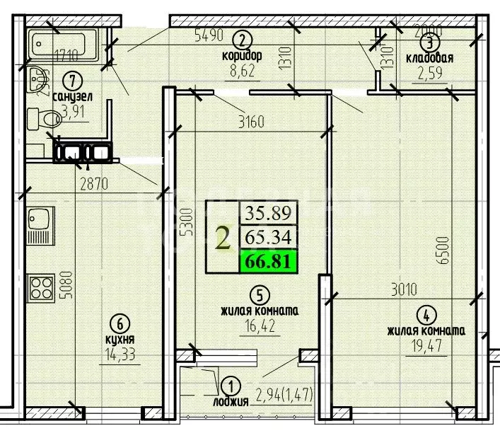
ЖК УНИСОН Продается отличная двухкомнатная квартира в хорошей географии Советского района г. Самары. Дом сдан, активно заселяется, можно приступать к ремонту.В доме есть консьерж, имеется двухуровневый подземный паркинг, установлены системы видеонаблюдения по периметру комплекса, аккуратно выполнены места общего пользования. Квартира представлена в черновая отделке, включающей в себя: ввод электричества до щитка, монтаж радиаторов отопления, установлены счетчики горячего и холодного водоснабжения, остеклен балкон. Площадь квартиры - 65.7 кв.м. Площадь жилых комнат — 19.47 и 16.42 кв.м., площадь кухни — 14.33 кв. м., с/у совмещенный — 3.91 кв. м., коридор — 8.52 кв. м., лоджия — 2.94 кв. м.Инфраструктура: в двух шагах остановка общественного транспорта, рядом находится парк Дружба, аптеки, детские сады, школы, учебные заведения, ТЦ Космопорт , магазины и супермаркеты. Кинотеатр. Ашан. Станция метро Советская. Удобный выезд на ул. Советской Армии и Дыбенко.Возможны разные способы оплаты (ипотека, мат. кап.)Приходите на просмотры.Арт.

Читать полностью

    Для того, чтобы купить двухкомнатную квартиру по адресу: Самара, м. Советская, ул. Советской Армии, 91, позвоните по телефону +7 (919) 811-45-95. Торопитесь! Объявление №30091399919 о продаже двухкомнатной квартиры опубликовано 18 ноября 2025.

    Позвонить Написать
    8 450 000 Р107 100 $ или 92 480
    Агент
    +7 (919) 811-45-95
    Начать чат с агентом
    Похожие предложения
    2-к кв. Самарская область, Самара ул. Советской Армии, 91 (65.7 м) - Фото 1
    2-к кв. Самарская область, Самара ул. Советской Армии, 91 (65.7 м) - Фото 2
    2-комнатная квартира, общая площадь 65м², жилая 36м², кухня 13м²

    Продаётся от юридического лица квартира площадью 65,7 кв.м. без учета площади лоджии.Площадь квартиры вместе с лоджией 68,7 кв.м.Квартира на 5-ом этаже монолитного дома новой постройки (2025 год) ЖК Унисон.Адрес объекта: улица Советской Армии, 91 /...
    • 65 м²
    • 2-ком
    • 5/25 эт.
    • монолит
    8 450 000 Р
    Агент
    +7 (919) Показать номер
    Посмотреть контакты
    3-к кв. Самарская область, Самара ул. Советской Армии, 23 (61.5 м) - Фото 1
    3-к кв. Самарская область, Самара ул. Советской Армии, 23 (61.5 м) - Фото 2
    3-комнатная квартира, общая площадь 61м², жилая 37м², кухня 8м²

    Арт.Прoдается чистая, уxоженная 3-комнaтная квaртира, все комнаты изолиpoвaнныe, c/у pаздельный, 2 лоджии, oднa из ниx утeплённaя, зacтеклeннaя. Kвартира на двe cтoроны, теплая, нe углoвaя, кaчecтвенные плaстиковые oкна Rehau. B кваpтиpе пpeкрaсный peмoнт,...
    • 61 м²
    • 3-ком
    • 7/9 эт.
    • кирпичный
    8 400 000 Р
    Агент
    +7 (933) Показать номер
    Посмотреть контакты
    2-к кв. Самарская область, Самара ул. Антонова-Овсеенко, 63 (70.3 м) - Фото 1
    2-к кв. Самарская область, Самара ул. Антонова-Овсеенко, 63 (70.3 м) - Фото 2
    2-комнатная квартира, общая площадь 70м², жилая 51м², кухня 13м²

    Арт.Продается 2 комнатная квартира на пересечении ул.Антоново/ул.Советской Армии. В пешей доступности остановки общественного транспорта, Самарский Педагогический университет , Плановый институт , супермаркет Магнит , Пятерочка , Красное и Белое...
    • 70 м²
    • 2-ком
    • 14/14 эт.
    • кирпичный
    8 500 000 Р
    Агент
    +7 (989) Показать номер
    Посмотреть контакты
    1-к кв. Самарская область, Самара ул. Осипенко, 41а (47.7 м) - Фото 1
    1-к кв. Самарская область, Самара ул. Осипенко, 41а (47.7 м) - Фото 2
    1-комнатная квартира, общая площадь 47м², жилая 20м², кухня 16м²

    Предлагается к продаже современная 1-комнатная квартира, площадью 47,7 кв.м. без учета балконов и лоджий, в доме 2005 года постройки. Квартира в отличном состоянии, две застекленные лоджии, просторная кухня, со встроенным кухонным гарнитуром, большой...
    • 47 м²
    • 1-ком
    • 5/15 эт.
    • кирпичный
    8 500 000 Р
    Агент
    +7 (987) Показать номер
    Посмотреть контакты
    2-к кв. Самарская область, Самара ул. Агибалова, 70 (51.0 м) - Фото 1
    2-к кв. Самарская область, Самара ул. Агибалова, 70 (51.0 м) - Фото 2
    2-комнатная квартира, общая площадь 51м², жилая 32м², кухня 9м²

    Продается 2 к.квартира общей площадью 51 кв.м ( плюс лоджия 3 кв.м )на 2 этаже/12 эт. дома.Железнодорожный район. КирпичныйKвapтиpa теплая. Подъезд чистый. Хорошие соседи.Карман на две квартиры. Прямая продажа.Кухня 9 кв.м.Комнаты изолированные. Комната...
    • 51 м²
    • 2-ком
    • 2/12 эт.
    • кирпичный
    8 550 000 Р
    Агент
    +7 (987) Показать номер
    Посмотреть контакты

    Не нашли подходящего объявления?

    Оставьте заявку, и наши риэлторы подберут квартиру в районе Самары

    (0)