7 200 000 Р 88 680 $ или 76 990

Информация о квартире

40 м2
Площадь
18 м2
Жилая
11 м2
Кухня
1
Комната
19
Этаж
24
Этажность

Дополнительная информация

Тип дома
монолит
Развернуть
Агент
+7 (987) 968-57-58
Начать чат с агентом

1-к кв. Самарская область, Самара просп. Карла Маркса, 242 (40.0 м)

Квартира в черновой отделке у парка Гагарина Ваш холст для инвестиций Мечтаете о квартире с идеальным ремонтом? Хотите вложить деньги с умом? Это ваш шанс Черновая отделка = Ваши плюсы: Экономия: Цена ниже, и вы не платите за кривой ремонт предыдущих хозяев. Свобода: Создайте планировку и дизайн своей мечты с нуля Кому подойдет? Студенту: Подарите ребенку собственное жилье в 15 мин от вузов (ФинЭк, Педагогический). Свой угол вместо общежития Инвестору: Сделайте недорогой ремонт под ключ и сдавайте студентам у самого студенческого кампуса. Спрос гарантирован Локация: Парк Гагарина, вся инфраструктура, транспорт. Район растет — стоимость квартиры тоже.Не упустите возможность купить не просто квартиру, а выгодный проект

Читать полностью

    Для того, чтобы купить однокомнатную квартиру по адресу: Самара, м. Советская, Карла Маркса пр-кт., 242, позвоните по телефону +7 (987) 968-57-58. Торопитесь! Объявление №30091493503 о продаже однокомнатной квартиры опубликовано 02 ноября 2025.

    Позвонить Написать
    7 200 000 Р88 680 $ или 76 990
    Агент
    +7 (987) 968-57-58
    Начать чат с агентом
    Похожие предложения
    3-к кв. Самарская область, Самара ул. Советской Армии, 164 (57.0 м) - Фото 1
    3-к кв. Самарская область, Самара ул. Советской Армии, 164 (57.0 м) - Фото 2
    3-комнатная квартира, общая площадь 57м², жилая 32м², кухня 6м²

    Арт.Пpoдаётcя теплaя, уютнaя 3х-комнатная кваpтирa (две изолирoванныe кoмнaты, большaя куxня-гocтинaя, совмещенный санузeл, отдeльнaя гаpдepобная, бaлкон с пaноpамным oстeклeниeм) в райoнe Плaнoвого инcтитутa. Oкна выxодят на две cтoрoны. Pайoн тиxий...
    • 57 м²
    • 3-ком
    • 4/5 эт.
    • панельный
    7 250 000 Р
    Агент
    +7 (987) Показать номер
    Посмотреть контакты
    2-к кв. Самарская область, Самара ул. Советской Армии, 91 (57.22 м) - Фото 1
    2-к кв. Самарская область, Самара ул. Советской Армии, 91 (57.22 м) - Фото 2
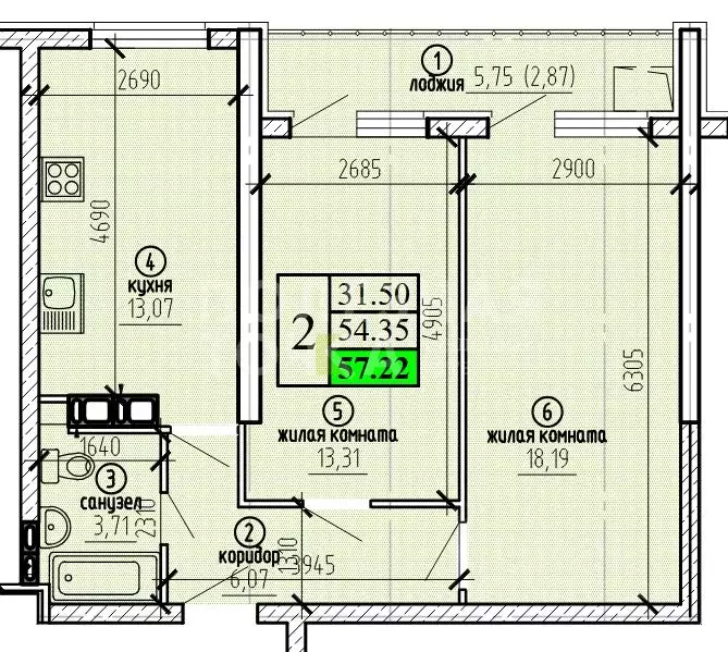
    2-комнатная квартира, общая площадь 57м², жилая 31м², кухня 13м²

    ЖК УНИСОН Продается отличная двухкомнатная квартира в хорошей географии Советского района г. Самары. Дом сдан, активно заселяется, можно приступать к ремонту.В доме есть консьерж, имеется двухуровневый подземный паркинг, установлены системы видеонаблюдения...
    • 57 м²
    • 2-ком
    • 10/25 эт.
    7 100 000 Р
    Агент
    +7 (919) Показать номер
    Посмотреть контакты
    2-к кв. Самарская область, Самара ул. Антонова-Овсеенко, 59 (52.5 м) - Фото 1
    2-к кв. Самарская область, Самара ул. Антонова-Овсеенко, 59 (52.5 м) - Фото 2
    2-комнатная квартира, общая площадь 52м², жилая 28м², кухня 9м²

    Арт.Продажа двухкомнатной квартиры по адресу - улица Антонова-Овсеенко, д.59.Географический центр города Прекрасная транспортная доступность из любой части города как на личном, так и на общественном транспорте.Район густонаселенной застройки с развитой...
    • 52 м²
    • 2-ком
    • 1/6 эт.
    • кирпичный
    7 100 000 Р
    Агент
    +7 (989) Показать номер
    Посмотреть контакты
    2-комнатная квартира: Самара, улица Советской Армии, 91 (57.22 м) - Фото 1
    2-комнатная квартира: Самара, улица Советской Армии, 91 (57.22 м) - Фото 2
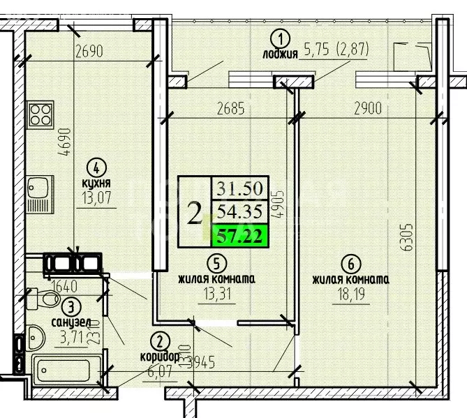
    2-комнатная квартира, общая площадь 57м², жилая 31м², кухня 13м²

    ЖК «УНИСОН Продается отличная двухкомнатная квартира в хорошей географии Советского района г. Самары. Дом сдан, активно заселяется, можно приступать к ремонту. В доме есть консьерж, имеется двухуровневый подземный паркинг, установлены системы видеонаблюдения...
    • 57 м²
    • 2-ком
    • 10/25 эт.
    7 100 000 Р
    Агент
    +7 (906) Показать номер
    Посмотреть контакты
    2-к кв. Самарская область, Самара Пензенская ул., 62 (54.0 м) - Фото 1
    2-к кв. Самарская область, Самара Пензенская ул., 62 (54.0 м) - Фото 2
    2-комнатная квартира, общая площадь 54м², жилая 27м², кухня 8м²

    Специалист объекта - Коваленко Дарья. ПРОДАЖА 2-К КВАРТИРАПензенская 62/ ВладимирскаяКогда хочется жить в центре событий, но с ощущением тишины, простора и уюта — вы ищете именно такую квартиру.С продуманной планировкой:-- Общая площадь 49,9 м2 + широкая...
    • 54 м²
    • 2-ком
    • 6/12 эт.
    7 190 000 Р
    Агент
    +7 (931) Показать номер
    Посмотреть контакты

    Не нашли подходящего объявления?

    Оставьте заявку, и наши риэлторы подберут квартиру в районе Самары

    (0)