8 500 000 Р 104 900 $ или 90 490

Информация о квартире

58 м2
Площадь
40 м2
Жилая
13 м2
Кухня
1
Комната
9
Этаж
16
Этажность
Развернуть
Агент
+7 (967) 381-20-91
Начать чат с агентом

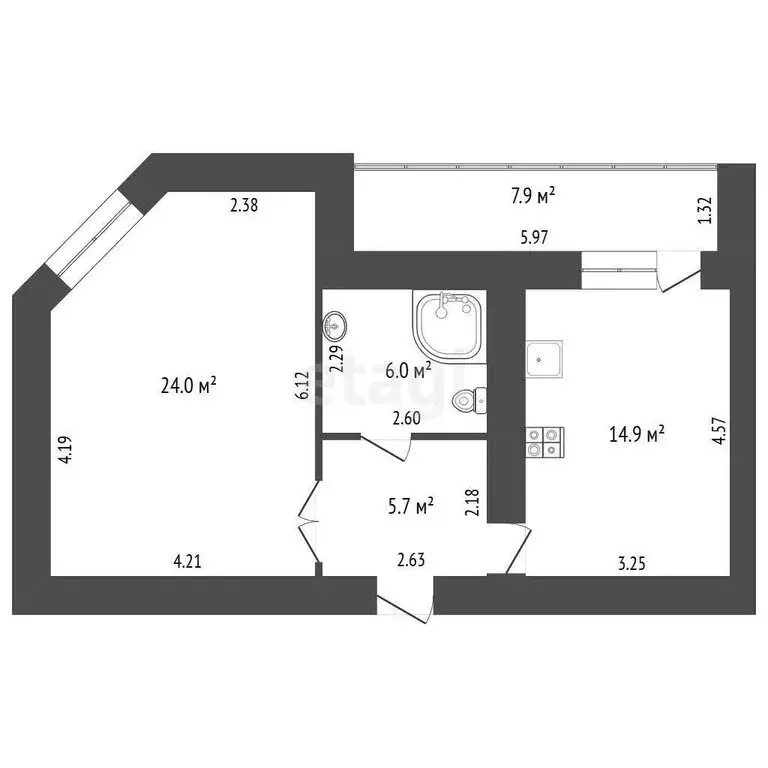
1-комнатная квартира: Самара, проспект Карла Маркса, 55 (58.5 м)

Продается просторная квартира европейского формата общей площадью 58,5 кв. м в кирпичном доме комфорт-класса. Планировка отличается рациональным зонированием: изолированная гостиная-спальня площадью 24 кв. м, функциональная кухня 14,9 кв. м с обеденной зоной и местом для отдыха, а также большой санузел 6 кв. м, полностью отделанный мозаикой и оборудованный полноразмерной ванной. Особенностью объекта является лоджия 7,9 кв. м, часть которой грамотно преобразована в гардеробную зону. В отделке использованы качественные материалы: декоративная штукатурка на стенах, комбинированные потолки из гипсокартона и натяжных конструкций, в кухне, коридоре и санузле уложен теплый пол. Квартира полностью готова к проживанию, мебель остается по договоренности. Инфраструктура развита на высоком уровне: в самом доме расположены фитнес-клуб, детский сад, супермаркеты и сервисные предприятия, двор закрытого типа с детской площадкой и зоной для выгула собак. В пешей доступности находятся школы, детские сады, поликлиника, торговые центры и сквер. Развитая транспортная система обеспечивает быстрый доступ в любую часть города благодаря близости метро, трамвайных и автобусных маршрутов. Код пользователя: 157882Номер в базе:

Читать полностью

    Для того, чтобы купить однокомнатную квартиру по адресу: Самара, м. Московская, Карла Маркса пр-кт., 55, позвоните по телефону +7 (967) 381-20-91. Торопитесь! Объявление №30091596806 о продаже однокомнатной квартиры опубликовано 05 ноября 2025.

    Позвонить Написать
    8 500 000 Р104 900 $ или 90 490
    Агент
    +7 (967) 381-20-91
    Начать чат с агентом
    Похожие предложения
    1-к кв. Самарская область, Самара просп. Карла Маркса, 55 (58.5 м) - Фото 1
    1-к кв. Самарская область, Самара просп. Карла Маркса, 55 (58.5 м) - Фото 2
    1-комнатная квартира, общая площадь 58м², кухня 13м²

    Продается просторная квартира европейского формата общей площадью 58,5 кв. м в кирпичном доме комфорт-класса. Планировка отличается рациональным зонированием: изолированная гостиная-спальня площадью 24 кв. м, функциональная кухня 14,9 кв. м с обеденной...
    • 58 м²
    • 1-ком
    • 9/16 эт.
    • кирпичный
    8 500 000 Р
    Агент
    +7 (919) Показать номер
    Посмотреть контакты
    1-к кв. Самарская область, Самара просп. Карла Маркса, 55 (60.1 м) - Фото 1
    1-к кв. Самарская область, Самара просп. Карла Маркса, 55 (60.1 м) - Фото 2
    1-комнатная квартира, общая площадь 60м², кухня 11м²

    Продается просторная квартира на 10-м этаже площадью 60,1 кв. м, только после ремонта, никто не жил. В ходе строительных работ использовались дорогие, качественные материалы. Свободная продажа, один взрослый собственник, никто не прописан. Площадь комнаты...
    • 60 м²
    • 1-ком
    • 10/15 эт.
    8 600 000 Р
    Агент
    +7 (917) Показать номер
    Посмотреть контакты
    3-к кв. Самарская область, Самара просп. Карла Маркса, 13 (74.0 м) - Фото 1
    3-к кв. Самарская область, Самара просп. Карла Маркса, 13 (74.0 м) - Фото 2
    3-комнатная квартира, общая площадь 74м², жилая 42м², кухня 10м²

    Специалист объекта - Волынкин Сергей. Продается 3-комнатная квартира на Карла Маркса, 13 — уют и пространство для вашей семьи Эта квартира — не просто жильё, а место, где каждый день будет наполнен комфортом и теплом.Площадь 74 м, расположена на 3 этаже...
    • 74 м²
    • 3-ком
    • 3/10 эт.
    8 500 000 Р
    Агент
    +7 (931) Показать номер
    Посмотреть контакты
    1-к кв. Самарская область, Самара ул. Осипенко, 41а (47.7 м) - Фото 1
    1-к кв. Самарская область, Самара ул. Осипенко, 41а (47.7 м) - Фото 2
    1-комнатная квартира, общая площадь 47м², жилая 20м², кухня 16м²

    Предлагается к продаже современная 1-комнатная квартира, площадью 47,7 кв.м. без учета балконов и лоджий, в доме 2005 года постройки. Квартира в отличном состоянии, две застекленные лоджии, просторная кухня, со встроенным кухонным гарнитуром, большой...
    • 47 м²
    • 1-ком
    • 5/15 эт.
    • кирпичный
    8 500 000 Р
    Агент
    +7 (987) Показать номер
    Посмотреть контакты
    1-к кв. Самарская область, Самара Владимирская ул., 33 (48.2 м) - Фото 1
    1-к кв. Самарская область, Самара Владимирская ул., 33 (48.2 м) - Фото 2
    1-комнатная квартира, общая площадь 48м², жилая 15м², кухня 20м²

    Продаётся уютная и комфортабельная квартира в престижном районе Самары Железнодорожном. Адрес: Владимирская улица, дом 33. Цена. Квартира расположена на восьмом этаже двадцатиэтажного кирпичного дома, построенного в 2019 году. Общая площадь квартиры составляет...
    • 48 м²
    • 1-ком
    • 8/20 эт.
    • кирпичный
    8 500 000 Р
    Агент
    +7 (987) Показать номер
    Посмотреть контакты

    Не нашли подходящего объявления?

    Оставьте заявку, и наши риэлторы подберут квартиру в районе Самары

    (0)