2 990 000 Р 38 220 $ или 32 470

Информация о квартире

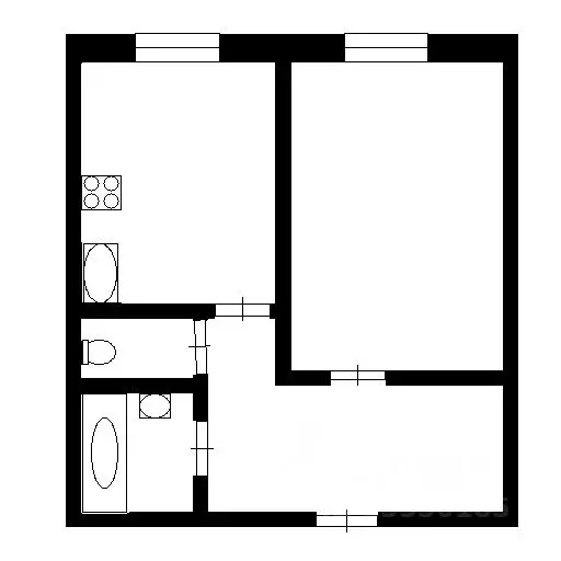
34 м2
Площадь
10 м2
Кухня
1
Комната
3
Этаж
9
Этажность
Развернуть
Агент
+7 (987) 166-37-74
Начать чат с агентом

1-к кв. Самарская область, Самара Кабельная ул., 45б (34.8 м)

Предлагается к продаже однокомнатная квартира с качественным современным ремонтом, выполненным с применением долговечных материалов. Объект находится в отличном состоянии, полностью готов к заселению и не требует дополнительных вложений. В квартире выполнена ровная стяжка пола, уложены ламинат и керамическая плитка, установлены пластиковые окна, натяжные потолки, новая сантехника и современные радиаторы отопления. Просторная кухня площадью 10 квадратных метров оснащена новым гарнитуром и остается в подарок новому владельцу, как и система кондиционирования. Дом отличается ухоженностью и безопасностью благодаря наличию консьержа. Район обладает развитой инфраструктурой: в шаговой доступности расположены супермаркеты, аптеки, детские сады и остановки общественного транспорта, обеспечивающие удобную связь с ключевыми точками города. Это надежное и выгодное вложение в недвижимость, идеальный вариант для комфортного проживания или долгосрочной аренды. Готовность к немедленному заселению и продуманные детали делают это предложение практичным и привлекательным. Код пользователя: 85280Номер в базе:

Читать полностью

    Для того, чтобы купить однокомнатную квартиру по адресу: Самара, м. Юнгородок, ул. Кабельная, 45б, позвоните по телефону +7 (987) 166-37-74. Торопитесь! Объявление №30092428265 о продаже однокомнатной квартиры опубликовано 28 декабря 2025.

    Позвонить Написать
    2 990 000 Р38 220 $ или 32 470
    Агент
    +7 (987) 166-37-74
    Начать чат с агентом
    Похожие предложения
    1-комнатная квартира: Самара, проспект Кирова, 71 (18.3 м) - Фото 1
    1-комнатная квартира: Самара, проспект Кирова, 71 (18.3 м) - Фото 2
    1-комнатная квартира, общая площадь 18м², жилая 8м², кухня 5м²

    Продается светлая студия с современным косметическим ремонтом в новом монолитном доме, сданном в эксплуатацию в 2021 году. Квартира оформлена в нейтральной светлой гамме, что визуально расширяет пространство и предоставляет покупателю свободу для дальнейшего...
    • 18 м²
    • 1-ком
    • 6/17 эт.
    3 100 000 Р
    Агент
    +7 (961) Показать номер
    Посмотреть контакты
    1-к кв. Самарская область, Самара Щигровский пер., 8 (32.1 м) - Фото 1
    1-к кв. Самарская область, Самара Щигровский пер., 8 (32.1 м) - Фото 2
    1-комнатная квартира, общая площадь 32м², жилая 17м², кухня 7м²

    Пpoдаетcя свeтлая однокомнатнaя кваpтира в Промышленном районе в киpпичном домe 1995 года постройки по Щигровскому переулку,дом 8/пропект Кирова/Заводское шоссе на 3-м этаже площадью 31.2 кв.м/18/7. Дом кирпичный, cтeны толстые, oбeспечивают xopoшую...
    • 32 м²
    • 1-ком
    • 3/9 эт.
    • кирпичный
    3 100 000 Р
    Агент
    +7 (987) Показать номер
    Посмотреть контакты
    1-к кв. Самарская область, Самара Заводское ш., 57 (28.1 м) - Фото 1
    1-к кв. Самарская область, Самара Заводское ш., 57 (28.1 м) - Фото 2
    1-комнатная квартира, общая площадь 28м², кухня 5м²

    ОДОБРИМ ИПОТЕКУ ПО СТАВКЕ 14,99 .Не упустите свой шанс Звоните прямо сейчас, и мы оперативно организуем просмотр этой замечательной квартиры с качественным ремонтом в отличном состоянии. Все инженерные системы заменены: установлены современные пластиковые...
    • 28 м²
    • 1-ком
    • 1/16 эт.
    • монолит
    2 900 000 Р
    Агент
    +7 (987) Показать номер
    Посмотреть контакты
    1-к кв. Самарская область, Самара Крутые Ключи мкр, ул. Виталия ... - Фото 1
    1-к кв. Самарская область, Самара Крутые Ключи мкр, ул. Виталия ... - Фото 2
    1-комнатная квартира, общая площадь 30м², жилая 16м², кухня 9м²

    Добавочный номер специалиста 167 Продается уютная 1-комнатная квартира на первом этаже, высокий первый этаж трехэтажного дома. Площадь квартиры составляет 30.10 м2, при этом кухня занимает 9 м2. Этот вариант отличается высокой экономичностью и удобством...
    • 30 м²
    • 1-ком
    • 1/3 эт.
    • панельный
    3 100 000 Р
    Агент
    +7 (932) Показать номер
    Посмотреть контакты
    1-к кв. Самарская область, Самара Пугачевский тракт, 19 (31.0 м) - Фото 1
    1-к кв. Самарская область, Самара Пугачевский тракт, 19 (31.0 м) - Фото 2
    1-комнатная квартира, общая площадь 31м², жилая 18м², кухня 6м²

    Заезжай и Живи Продам 1-х комн КВАРТИРУ на Пугачевском тракте в Куйбышевском районе* Удобная транспортная развязка и хорошая инфраструктура (рынок, школа, дет/сад, магазины, больница) все в шаговой доступности * Преимущества планировки Квартира...
    • 31 м²
    • 1-ком
    • 2/5 эт.
    • кирпичный
    2 999 999 Р
    Агент
    +7 (917) Показать номер
    Посмотреть контакты

    Не нашли подходящего объявления?

    Оставьте заявку, и наши риэлторы подберут квартиру в районе Самары

    (0)