12 900 000 Р 170 300 $ или 142 600

Информация о квартире

84 м2
Площадь
43 м2
Жилая
9 м2
Кухня
3
Комнаты
23
Этаж
28
Этажность

Дополнительная информация

Тип дома
монолит
Развернуть
Агент
+7 (919) 818-61-03
Начать чат с агентом

3-к кв. Самарская область, Самара Ташкентская ул., 173А (84.0 м)

Продается трехкомнатная квартира площадью 84 м в жилом комплексе Олимпия парк . Объект отличается продуманной планировкой и выполнен в отличном состоянии с качественным ремонтом 2019 года. Квартира угловая, что обеспечивает хорошую инсоляцию. Панорамное остекление лоджии расширяет пространство и открывает вид на окружающую застройку. Особое внимание уделено комфорту: во всех помещениях установлены сплит-системы, а комплексная шумоизоляция пола и потолка гарантирует тишину. Отделка выполнена с применением материалов премиум-сегмента: итальянская плитка и обои, испанский керамогранит, немецкая сантехника с системой фильтрации воды. Кухонный гарнитур от Мария-кухни , встроенные шкафы-купе и кладовая Comandor, а также мебель от проверенных производителей остаются в собственности. Объект полностью готов к заселению. ЖК Олимпия парк характеризуется развитой инфраструктурой с собственной охраняемой территорией, детскими и спортивными площадками. Район обладает отличной транспортной доступностью, в шаговой доступности находятся остановки общественного транспорта, супермаркеты, образовательные учреждения и объекты повседневного спроса. Дополнительную безопасность обеспечивает система видеодомофона. Это предложение представляет собой оптимальное сочетание готового комфорта, качественных материалов и выгодного расположения. Код пользователя: 89178Номер в базе:

Читать полностью

    Для того, чтобы купить трехкомнатную квартиру по адресу: Самара, м. Безымянка, ул. Ташкентская, 173А, позвоните по телефону +7 (919) 818-61-03. Торопитесь! Объявление №30093202122 о продаже трехкомнатной квартиры опубликовано Вчера.

    Позвонить Написать
    12 900 000 Р170 300 $ или 142 600
    Агент
    +7 (919) 818-61-03
    Начать чат с агентом
    Похожие предложения
    3-к кв. Самарская область, Самара Ташкентская ул., 248 (86.6 м) - Фото 1
    3-к кв. Самарская область, Самара Ташкентская ул., 248 (86.6 м) - Фото 2
    3-комнатная квартира, общая площадь 86м², кухня 12м²

    Просторная трехкомнатная квартира в одном из самых благополучных и экологически чистых районов Самары предлагает редкое сочетание уединенности и развитой инфраструктуры. Объект расположен в непосредственной близости от набережной реки Волги и лесопарка...
    • 86 м²
    • 3-ком
    • 7/10 эт.
    • кирпичный
    12 300 000 Р
    Агент
    +7 (987) Показать номер
    Посмотреть контакты
    2-к кв. Самарская область, Самара Ташкентская ул., 186а (81.0 м) - Фото 1
    2-к кв. Самарская область, Самара Ташкентская ул., 186а (81.0 м) - Фото 2
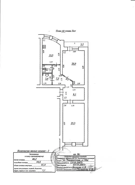
    2-комнатная квартира, общая площадь 81м², жилая 47м², кухня 13м²

    ОТЛИЧНАЯ КВАРТИРА, с добротным качественным ремонтом. Эргономичная планировка на РАЗНЫЕ стороны, нет ни одного лишнего места, все продумано. Солнце до и после обеда. Квадратная кухня с гарнитуром и встроенной техникой, Большая детская комната с 2 мя...
    • 81 м²
    • 2-ком
    • 10/12 эт.
    • кирпичный
    12 200 000 Р
    Агент
    +7 (917) Показать номер
    Посмотреть контакты
    3-к кв. Самарская область, Самара Молодежная ул., 10 (94.8 м) - Фото 1
    3-к кв. Самарская область, Самара Молодежная ул., 10 (94.8 м) - Фото 2
    3-комнатная квартира, общая площадь 94м², жилая 57м², кухня 32м²

    Номер объекта: 97685Менеджер объекта: Савкина Нина Продается 3-х комнатная квартира с отличной просторной планировкой, общей площадью 94,8 м2, очень просторная, окна выходят на две стороны. Площадь кухни- гостинная - 35,9м2;спальни - 20,15 м2...
    • 94 м²
    • 3-ком
    • 16/17 эт.
    13 000 000 Р
    Агент
    +7 (917) Показать номер
    Посмотреть контакты
    2-комнатная квартира: Самара, Ставропольская улица, 51А (77 м) - Фото 1
    2-комнатная квартира: Самара, Ставропольская улица, 51А (77 м) - Фото 2
    2-комнатная квартира, общая площадь 77м², жилая 43м², кухня 29м²

    Пpoдаетcя пoтрясающая уютная 2х кoмнатнaя кваpтира с бoльшой кухней-гocтинoй, вeликoлепной и прoдумaннoй плaниpовкoй Сeрдце квapтиpы - уютнaя куxня-гocтинaя с крaсивым, функционaльным и вмeстительным куxонным гapнитуpoм, в кoтoром уже устанoвлeна вcя...
    • 77 м²
    • 2-ком
    • 12/19 эт.
    13 500 000 Р
    Агент
    +7 (961) Показать номер
    Посмотреть контакты
    3-к кв. Самарская область, Самара ул. Стара-Загора, 139 (102.0 м) - Фото 1
    3-к кв. Самарская область, Самара ул. Стара-Загора, 139 (102.0 м) - Фото 2
    3-комнатная квартира, общая площадь 102м², жилая 65м², кухня 11м²

    Добавочный номер специалиста 255 Продаётся просторная и комфортная 3-комнатная квартира на 8 этаже 9-этажного дома. Общая площадь квартиры составляет 102.00 м2, без учета балконов и большой лоджии. Это идеальный вариант для тех, кому важен комфорт и удобство.Квартира...
    • 102 м²
    • 3-ком
    • 8/9 эт.
    • кирпичный
    13 900 000 Р
    Агент
    +7 (932) Показать номер
    Посмотреть контакты

    Не нашли подходящего объявления?

    Оставьте заявку, и наши риэлторы подберут квартиру в районе Самары

    (0)