6 900 000 Р 82 140 $ или 70 920

Информация о квартире

61 м2
Площадь
37 м2
Жилая
8 м2
Кухня
3
Комнаты
9
Этаж
9
Этажность
Развернуть
Агент
+7 (917) 110-41-37
Начать чат с агентом

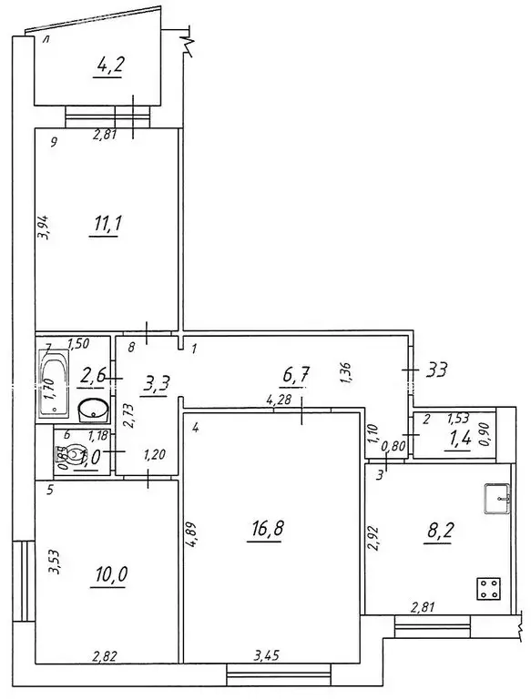
3-комнатная квартира: Самара, Ново-Садовая улица, 337 (61.1 м)

Продаётся 3-х комнатная квартира на 9 этаже 9 этажного панельного дома.Общая площадь по выписке ЕГРН 61,1 кв.м. Комнаты раздельные ( 16,8 + 11,1 с выходом на лоджию + 10 кв.м.)Кухня 8,2 кв.м.Расположение на три стороны света.Окна ПВХ, лоджия остекленная.На данный момент производится замена лифта в доме на новый. Рядoм школа, детский cад, магазины, ocтановка обществeнного трaнcпоpтa, отличная тpaнспopтная рaзвязка.Прямая продажа, один взрослый собственник, быстрый выход на сделку.

Читать полностью

    Для того, чтобы купить трехкомнатную квартиру по адресу: Самара, м. Безымянка, ул. Ново-Садовая, 337, позвоните по телефону +7 (917) 110-41-37. Торопитесь! Объявление №30094353111 о продаже трехкомнатной квартиры опубликовано 2 дня назад.

    Позвонить Написать
    6 900 000 Р82 140 $ или 70 920
    Агент
    +7 (917) 110-41-37
    Начать чат с агентом
    Похожие предложения
    2-к кв. Самарская область, Самара Ново-Садовая ул., 234 (54.1 м) - Фото 1
    2-к кв. Самарская область, Самара Ново-Садовая ул., 234 (54.1 м) - Фото 2
    2-комнатная квартира, общая площадь 54м², жилая 22м², кухня 9м²

    Продается 2-х комнатная квартира в экологически чистой зоне города, по ул. Ново-Садовая, 232, на 1/12-этажного панельного дома, с двумя застекленными лоджиями, одна из которых с погребом Через дорогу от дома расположен зеленый, благоустроенный сквер,...
    • 54 м²
    • 2-ком
    • 1/12 эт.
    • панельный
    7 000 000 Р
    Агент
    +7 (933) Показать номер
    Посмотреть контакты
    3-к кв. Самарская область, Самара просп. Кирова, 260 (60.8 м) - Фото 1
    3-к кв. Самарская область, Самара просп. Кирова, 260 (60.8 м) - Фото 2
    3-комнатная квартира, общая площадь 60м², жилая 38м², кухня 4м²

    Продается полностью отремонтированная квартира с необходимой мебелью с хорошим видом из окон. Отлично подойдет для людей, которые не хотят заниматься ремонтом. После ремонта никто не жил. Фотографии реальные. По квартире: Сделан качественный ремонт:...
    • 60 м²
    • 3-ком
    • 3/5 эт.
    • панельный
    6 999 000 Р
    Агент
    +7 (987) Показать номер
    Посмотреть контакты
    2-к кв. Самарская область, Самара Воронежская ул., 212 (48.0 м) - Фото 1
    2-к кв. Самарская область, Самара Воронежская ул., 212 (48.0 м) - Фото 2
    2-комнатная квартира, общая площадь 48м², жилая 28м², кухня 5м²

    Полностью отремонтированная 2-комнатная квартира с всей необходимой мебелью. Дом кирпичный 1968 года постройки. Отлично подойдет для людей, которые не хотят заниматься ремонтом - можно заехать и жить, все полностью готово. Фотографии реальные. Пo квартире:...
    • 48 м²
    • 2-ком
    • 7/9 эт.
    • кирпичный
    6 900 000 Р
    Агент
    +7 (917) Показать номер
    Посмотреть контакты
    3-к кв. Самарская область, Самара просп. Кирова, 201 (79.0 м) - Фото 1
    3-к кв. Самарская область, Самара просп. Кирова, 201 (79.0 м) - Фото 2
    3-комнатная квартира, общая площадь 79м², жилая 50м², кухня 9м²

    Продаю квартиру 9/10 этажного в кирпичном доме 1994 года постройки .Общая площадь : 79 кв.м.жилая площадь: 50кв.м., кухня площадь: 9,5 кв.м. Квартира на две стороны, все комнаты раздельные, лоджия 6,6 кв.м., сан узел раздельный. Развитая инфраструктура...
    • 79 м²
    • 3-ком
    • 9/10 эт.
    • кирпичный
    6 800 000 Р
    Агент
    +7 (939) Показать номер
    Посмотреть контакты
    2-к кв. Самарская область, Самара ул. Стара-Загора, 126 (50.6 м) - Фото 1
    2-к кв. Самарская область, Самара ул. Стара-Загора, 126 (50.6 м) - Фото 2
    2-комнатная квартира, общая площадь 50м², жилая 29м², кухня 9м²

    Продаётся уютная 2-комнатная квартира улучшенной планировки площадью 50,6 кв.м. Кухня 9,7 кв.м, комнаты 17,4 кв.м. и 12,5 кв.м. раздельные. Просторный коридор 7,8 кв.м. Санузел раздельный. Есть застекленная лоджия 4,1 кв.м. В квартире заменена проводка,...
    • 50 м²
    • 2-ком
    • 7/12 эт.
    • панельный
    6 900 000 Р
    Агент
    +7 (917) Показать номер
    Посмотреть контакты

    Не нашли подходящего объявления?

    Оставьте заявку, и наши риэлторы подберут квартиру в районе Самары

    (0)