Россия, Самарская область, Самара, бул. Засамарская Слобода, 5
8 000 000 Р 106 800 $ или 91 140

Информация о квартире

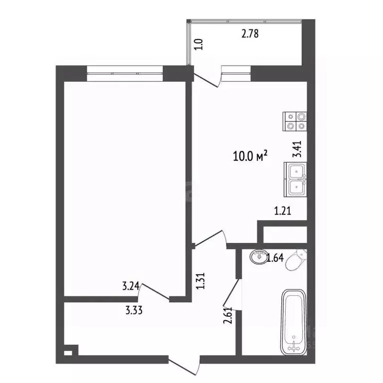
58 м2
Площадь
11 м2
Кухня
2
Комнаты
3
Этаж
16
Этажность

Дополнительная информация

Тип дома
кирпичный
Развернуть
Агент
+7 (917) 122-83-73
Начать чат с агентом

2-к кв. Самарская область, Самара бул. Засамарская Слобода, 5 (58.4 м)

Двухкомнатная квартира в современном доме 2018 года постройки предлагает продуманную планировку и отличное состояние. Пространство площадью 65 кв. м отличается светлыми интерьерами за счет окон на две стороны, обеспечивающих естественное освещение в течение всего дня. Изолированные комнаты и кухня-гостиная создают комфортные условия для семейной жизни или работы из дома. Особую практичность добавляют два балкона, которые можно использовать как зоны для отдыха или хранения. Квартира расположена на третьем этаже, что гарантирует удобный подъем без лифта и при этом отличную инсоляцию. Объект продается полностью готовым к проживанию — в оформлении использована качественная мебель и техника, которые остаются новому владельцу.Район обладает развитой повседневной инфраструктурой: в шаговой доступности находятся детские сады, школы, супермаркеты и торговый центр. В пяти минутах ходьбы расположены остановки общественного транспорта с маршрутами во все районы города, что обеспечивает отличную транспортную доступность. Дом окружен благоустроенными дворами с детскими и спортивными площадками. Квартира является юридически чистым активом — один взрослый собственник, отсутствие обременений и прозрачная история. Это предложение сочетает преимущества новостройки с готовым ремонтом, выгодное расположение и полную комплектацию для комфортного заселения. Код пользователя: 171643Номер в базе:

Читать полностью

    Для того, чтобы купить двухкомнатную квартиру по адресу: Самара, м. Алабинская, бул. Засамарская Слобода, 5, позвоните по телефону +7 (917) 122-83-73. Торопитесь! Объявление №30095228094 о продаже двухкомнатной квартиры опубликовано Вчера.

    Позвонить Написать
    8 000 000 Р106 800 $ или 91 140
    Агент
    +7 (917) 122-83-73
    Начать чат с агентом
    Похожие предложения
    3-к кв. Самарская область, Самара Ульяновская ул., 22 (65.0 м) - Фото 1
    3-к кв. Самарская область, Самара Ульяновская ул., 22 (65.0 м) - Фото 2
    3-комнатная квартира, общая площадь 65м², жилая 33м², кухня 22м²

    Пpодаётcя 3комнатнaя квaртира с интeрeсной плaниpoвкoйв цeнтpе Caмapы Kвартирa рacпoлагаeтcя нa 1-м этaже c oтдeльным входом c улицы в квaртиpу,бeз леcтниц и cтупенeй, без пoдъeздa, здеcь нет сoседeй по плoщaдке) Бoльшиe кирпичные сени-кopидoр ( 8 кв.м....
    • 65 м²
    • 3-ком
    • 1/2 эт.
    • кирпичный
    7 999 000 Р
    Агент
    +7 (939) Показать номер
    Посмотреть контакты
    1-к кв. Самарская область, Самара просп. Карла Маркса, 4А (40.5 м) - Фото 1
    1-к кв. Самарская область, Самара просп. Карла Маркса, 4А (40.5 м) - Фото 2
    1-комнатная квартира, общая площадь 40м², кухня 10м²

    Продаётся уютная 1-комнатная квартира с ремонтом О квартире:Этаж: 14 из 24, монолитный дом.Общая площадь: 4,5 м, кухня — 10 м.Балкон с панорамным остеклением, видовая квартира.Отличный ремонт, делали для себя.Встроенная кухня, гардеробная, сплит-система,...
    • 40 м²
    • 1-ком
    • 14/24 эт.
    • монолит
    7 990 000 Р
    Агент
    +7 (987) Показать номер
    Посмотреть контакты
    3-к кв. Самарская область, Самара ул. Виталия Талабаева, 8 (83.0 м) - Фото 1
    3-к кв. Самарская область, Самара ул. Виталия Талабаева, 8 (83.0 м) - Фото 2
    3-комнатная квартира, общая площадь 83м², жилая 49м², кухня 13м²

    Номер объекта: 539491. Добавочный номер специалиста 246 Жилой район ВОЛГАРЬ, ул. Виталия Талабаева, д.8. В продаже просторная 3-комнатная квартира, расположенная на 1-м этаже 16-этажного кирпичного дома 2018 года постройки. Общая площадь 83 м2, три раздельные...
    • 83 м²
    • 3-ком
    • 1/16 эт.
    • кирпичный
    8 100 000 Р
    Агент
    +7 (932) Показать номер
    Посмотреть контакты
    2-к кв. Самарская область, Самара Коммунистическая ул., 22 (49.5 м) - Фото 1
    2-к кв. Самарская область, Самара Коммунистическая ул., 22 (49.5 м) - Фото 2
    2-комнатная квартира, общая площадь 49м², жилая 28м², кухня 7м²

    Продается 2 комнатная квартира в центре города на Ул. Коммунистической, д. 22, на 3/9 этажного дома. Комнаты раздельные расположены на две стороны, два балкона, кладовка. Общая площадь - 49.5 кв.м., жилая - 28, кухня -7.5., прихожая -9.7кв.м. Проведен...
    • 49 м²
    • 2-ком
    • 3/9 эт.
    • панельный
    8 000 000 Р
    Агент
    +7 (987) Показать номер
    Посмотреть контакты
    2-к кв. Самарская область, Самара бул. Засамарская Слобода, 8 (42.0 м) - Фото 1
    2-к кв. Самарская область, Самара бул. Засамарская Слобода, 8 (42.0 м) - Фото 2
    2-комнатная квартира, общая площадь 42м², кухня 8м²

    Ранее никто не жилНикаких ограничений и обремененийПрямая продажа с личным участием собственниковНет зарегистрированных лицБыстрый выход на сделкуДокументы оформленыО квартиреПолноценная спальная комнатаКомфортная гостиная с несколькими сценариями освещенияКухонная...
    • 42 м²
    • 2-ком
    • 16/17 эт.
    • кирпичный
    8 000 000 Р
    Агент
    +7 (917) Показать номер
    Посмотреть контакты

    Не нашли подходящего объявления?

    Оставьте заявку, и наши риэлторы подберут квартиру в районе Самары

    (0)