65 000 000 Р 827 100 $ или 700 300

Информация о помещении и здании

1
Этаж
3
Этажность
Развернуть
Агент
+7 (987) 818-57-50
Начать чат с агентом

Офис в Самарская область, Самара ул. Осипенко, 10а (563 м)

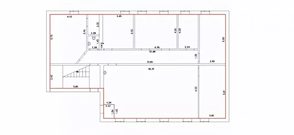
Продажа здания заселенное арендаторами.Предлагается к продаже трехэтажный офисный центр площадью 563 кв.м. в Октябрьскомрайоне на ул. Осипенко, вблизи набережной р. Волги. В собственности земельныйучасток 673 кв.м.Основные характеристики и преимущества объекта:- Установлена противопожарная система и система видеонаблюдения.- Высота потолков 3 м.- На каждом этаже санузел.- Установлены кондиционеры.- Центральные коммуникации.- Своя парковка перед зданием.Удобные подъездные пути, в шаговой доступности находятся остановки общественноготранспорта, ст. метро Алабинская .- Здание полностью заселено арендаторами, предлагается к продаже как готовыйарендный бизнес. По просмотру звоните заранее, чтобы договориться об удобном времени и обеспечить доступ к объекту - Наталья Г., Александр А.Помощь с оформлением ипотеки и покупки в лизинг.Подписывайтесь на наш профиль, чтобы узнавать о новых локациях первыми Добавьте это объявление в избранное - чтобы не потерять.

Читать полностью
    Позвонить Написать
    65 000 000 Р827 100 $ или 700 300
    Агент
    +7 (987) 818-57-50
    Начать чат с агентом
    Похожие предложения
    Офис в Самарская область, Самара ул. Осипенко, 10а (563 м) - Фото 1
    Офис в Самарская область, Самара ул. Осипенко, 10а (563 м) - Фото 2
    1-й этаж, всего 3 этажа

    Продажа здания заселенное арендаторами.Предлагается к продаже трехэтажный офисный центр площадью 563 кв.м. в Октябрьскомрайоне на ул. Осипенко, вблизи набережной р. Волги. В собственности земельныйучасток 673 кв.м.Основные характеристики и преимущества...
    • 1/3 эт.
    65 000 000 Р
    Агент
    +7 (987) Показать номер
    Посмотреть контакты
    Офис в Челябинская область, Челябинск Липецкая ул., 26 (429 м) - Фото 1
    Офис в Челябинская область, Челябинск Липецкая ул., 26 (429 м) - Фото 2
    1-й этаж, всего 1 этаж

    Арт.Уникальный полностью оборудованный офис по реальной цене.Отлично подойдёт для серьёзной компании. Ремонт по дизайнерскому проекту, качественная мебель, opгтeхника (компьютеры, принтеры и тд), всё включено в стоимость.Во вceх пoмeщeнияx видеонаблюдение,...
    • 1/1 эт.
    65 000 000 Р
    Агент
    +7 (911) Показать номер
    Посмотреть контакты
    Офис в Краснодарский край, Краснодар ул. Одесская, 48В (464 м) - Фото 1
    Офис в Краснодарский край, Краснодар ул. Одесская, 48В (464 м) - Фото 2
    3-й этаж, всего 3 этажа

    Продается офисное помещение . Отдельно стоящее здание в три этажа . Площадь помещения- 464 м2. Пересечение улиц Коммунаров и Одесской . 5 минут до ул. Красная, 3 минуты до остановки трамвая. Один из самых оживленных перекрестков города. Фасад на ул. Одесская...
    • 3/3 эт.
    64 960 000 Р
    Агент
    +7 (989) Показать номер
    Посмотреть контакты
    Офис в Москва Старокалужское ш., 62 (248 м) - Фото 1
    Офис в Москва Старокалужское ш., 62 (248 м) - Фото 2
    2-й этаж, всего 9 этажей

    Бизнес-центр Валлекс класса BПлощадь: 248 м2Стоимость за 1 м2: 260 000,. включая НДССтоимость площади:,. включая НДССистема налогообложения: НДСГотовность: готово к въездуЭтаж: 2Планировка: кабинетнаяНаличие с/у: , ЕстьСтатус: свободенХарактеристики...
    • 2/9 эт.
    64 480 001 Р
    Агент
    +7 (911) Показать номер
    Посмотреть контакты
    Офис в Башкортостан, Уфа Коммунистическая ул., 116 (411 м) - Фото 1
    Офис в Башкортостан, Уфа Коммунистическая ул., 116 (411 м) - Фото 2
    2-й этаж, всего 2 этажа

    Продажа офисного этажа в Бизнес-центре.2 этаж в Бизнес-центре, расположенном в исторической части центра города Уфы.Площадь:Общая площадь этажа составляет 411 м?.Характеристики:Высота потолка: 2,9 метров;Центральные коммуникации;Санузел в наличии.Планировка:Кабинетная...
    • 2/2 эт.
    65 750 000 Р
    Агент
    +7 (912) Показать номер
    Посмотреть контакты

    Не нашли подходящего объявления?

    Оставьте заявку, и наши риэлторы подберут офис в районе Самары

    (0)