93 470 000 Р 1 112 800 $ или 960 700

Информация о помещении и здании

4
Этаж
7
Этажность
Развернуть
Агент
+7 (931) 895-66-12
Начать чат с агентом

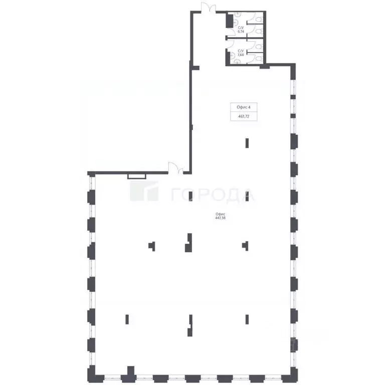
Офис в Самарская область, Самара Аэродромная ул., 45А (1438 м)

Продается офисное помещение в офисном здании по адресу Аэродромная 45а.Новый ремонт 2026 г., отделка завершена ведётся установка кондиционеров.- 4-й этаж 9-ти этажного офисного центра- 1438,2 кв.м (этаж целиком), в .т.ч коридор и др. МОПы.- электрические мощности 40 кВт;- телефонные операторы на выбор (Ростелеком, МТС, Вымпелком, R-телеком, Авантел и др.)- в здании 2 лифта;- кафе, точки питания для сотрудников;Основные характеристики:планировка — опенспейс;напольное покрытие — гомогенное;стены и потолки — окрашенные (потолки в тёмном цвете);освещение — светодиодное;окна — пластиковые.Инфраструктура и коммуникации:лифт в здании;бытовые помещения и санузлы на этаже;центральные коммуникации;система пожарной безопасности;вытяжная вентиляция;заложена система контроля и учёта доступа;заложена система видеонаблюдения (может быть реализована арендатором).Дополнительные преимущества:охраняемая платная парковка рядом со входом в здание;возможность аренды дополнительных площадей на других этажах.Ремонт:1. СКУД 4 двери (3 на лестничные клетки, 1 в лифтовой холл)2. Видеонаблюдение: коридор 4 камеры с записью периода 7 дней3. Вытяжная вентиляция4. Противопожарные клапаны (дымоудаление)5. Система СОУЭ6. Кондиционирование: сплитсистемы над каждым окном .7. Провайдер интернета: на каждый дверной проём7. В помещениях коммерческий линолеум, коридор плитка 600х6008. Потолок в коридоре грильято9. В помещениях потолок открытый с крашенными коммуникациямиПроект ремонта позволяет максимально гибко использовать пространство. Предусмотрена возможность разделения помещений на кабинеты, или комбинированное использование с пространствами опенспейс.Звоните, чтобы узнать подробности и договориться о просмотре

Читать полностью
    Позвонить Написать
    93 470 000 Р1 112 800 $ или 960 700
    Агент
    +7 (931) 895-66-12
    Начать чат с агентом
    Похожие предложения
    Продажа офиса 1438.0м Аэродромная ул., 45А, Самара, Самарская область, - Фото 1
    Продажа офиса 1438.0м Аэродромная ул., 45А, Самара, Самарская область, - Фото 2
    Продажа офиса 1438.0м Аэродромная ул., 45А, Самара, Самарская область, - Фото 3
    Продажа офиса 1438.0м Аэродромная ул., 45А, Самара, Самарская область, - Фото 4
    Продажа офиса 1438.0м Аэродромная ул., 45А, Самара, Самарская область, - Фото 5
    Продажа офиса 1438.0м Аэродромная ул., 45А, Самара, Самарская область, - Фото 6
    Продажа офиса 1438.0м Аэродромная ул., 45А, Самара, Самарская область, - Фото 7
    Продажа офиса 1438.0м Аэродромная ул., 45А, Самара, Самарская область, - Фото 8
    Продажа офиса 1438.0м Аэродромная ул., 45А, Самара, Самарская область, - Фото 9
    Продажа офиса 1438.0м Аэродромная ул., 45А, Самара, Самарская область, - Фото 10
    Продажа офиса 1438.0м Аэродромная ул., 45А, Самара, Самарская область, - Фото 11
    реализуемая площадь 1438м², 4-й этаж, всего 7 этажей, смешанная планировка, евроремонт

    Продается офисное помещение в офисном здании по адресу Аэродромная 45а. Новый ремонт 2026 г. , отделка завершена ведётся установка кондиционеров. - 4-й этаж 9-ти этажного офисного центра - 1438,2 кв.м (этаж целиком), в .т.ч коридор и др. МОПы. -...
    • 1 438 м²
    • A
    • 4/7 эт.
    • интернет
    93 470 000 Р
    PRO
    +7 (960) Показать номер
    Посмотреть контакты
    Офис в Москва Старокалужское ш., 64С1 (221 м) - Фото 1
    Офис в Москва Старокалужское ш., 64С1 (221 м) - Фото 2
    10-й этаж, всего 23 этажа

    РАБОТАЕМ С АГЕНТАМИ. РЕНТАВИК— участник ассоциации КОКОН. Деловой квартал класса А в юго-западном направлении Москвы. Комплекс расположен в шаговой доступности от станций метро Калужская и Воронцовская, внутри ТТК, рядом с Ленинским проспектом, что обеспечивает...
    • 10/23 эт.
    93 483 000 Р
    Агент
    +7 (933) Показать номер
    Посмотреть контакты
    Офис в Новосибирская область, Новосибирск ул. Дуси Ковальчук, 246 (461 ... - Фото 1
    Офис в Новосибирская область, Новосибирск ул. Дуси Ковальчук, 246 (461 ... - Фото 2
    3-й этаж, всего 24 этажа

    Код объекта: 1887424.Уникальное предложение для вашего бизнеса: просторные офисные помещения в новом кирпичном здании на улице Дуси Ковальчук, 246 в Новосибирске.Это идеальный выбор для компаний, которые ищут надёжное и современное пространство для работы....
    • 3/24 эт.
    93 000 000 Р
    Агент
    +7 (913) Показать номер
    Посмотреть контакты
    Офис в Новосибирская область, Новосибирск ул. Дуси Ковальчук, 246 (461 ... - Фото 1
    Офис в Новосибирская область, Новосибирск ул. Дуси Ковальчук, 246 (461 ... - Фото 2
    3-й этаж, всего 24 этажа

    Код объекта: 1887424.Уникальное предложение для вашего бизнеса: просторные офисные помещения в новом кирпичном здании на улице Дуси Ковальчук, 246 в Новосибирске.Это идеальный выбор для компаний, которые ищут надёжное и современное пространство для работы....
    • 3/24 эт.
    93 000 000 Р
    Агент
    +7 (913) Показать номер
    Посмотреть контакты
    Офис в Тюменская область, Тюмень ул. Чернышевского, 2б (930 м) - Фото 1
    Офис в Тюменская область, Тюмень ул. Чернышевского, 2б (930 м) - Фото 2
    2-й этаж, всего 14 этажей

    Арт.. Продам офисное помещение в центре города на втором этаже с ремонтом.Свободной планировки.Высота потолков 4 метра.Электрическая мощность 30 кВт.В помещении два входа (пожарный во двор).Панорамное остекление.Парковка перед объектом.В цену объекта...
    • 2/14 эт.
    93 000 000 Р
    Агент
    +7 (982) Показать номер
    Посмотреть контакты

    Не нашли подходящего объявления?

    Оставьте заявку, и наши риэлторы подберут офис в районе Самары

    (0)