92 000 000 Р 1 135 700 $ или 965 000

Информация об помещении

1
Этаж

Состояние и оснащение

Количество этажей
9
Развернуть
Агент
Лайф Групп
+7 (933) 783-20-28
Начать чат с агентом

Помещение свободного назначения в Самарская область, Самара просп. ...

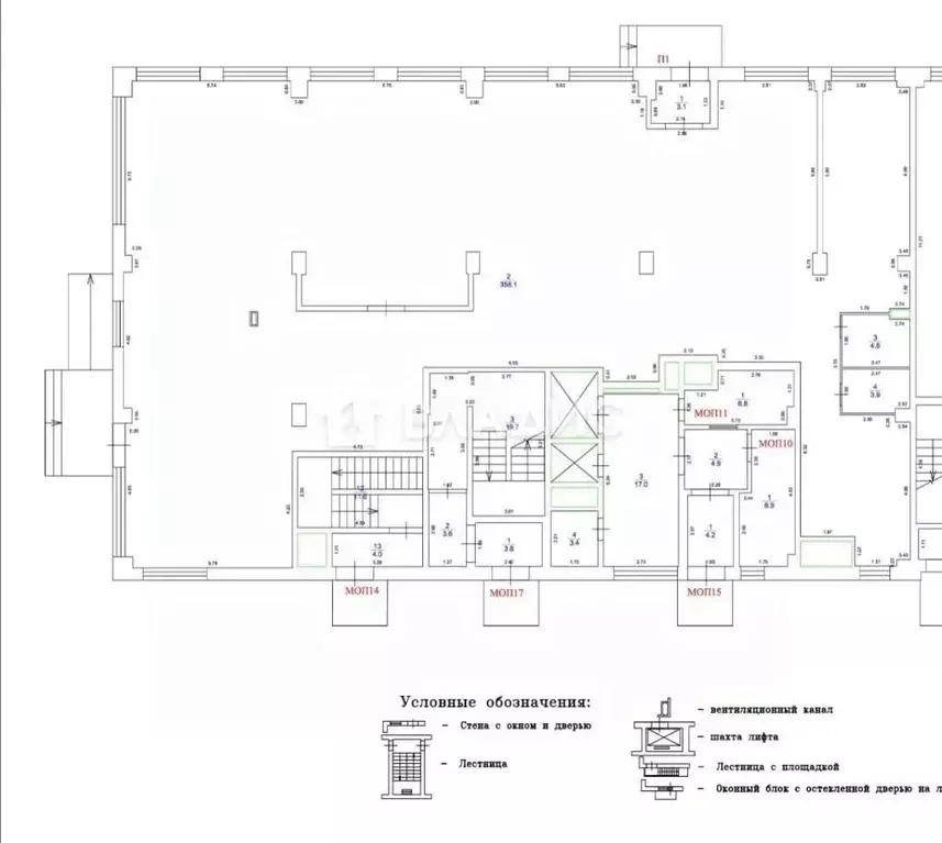
Продается уникальное встроено - пристроенное помещение на одной из центральных улиц города Самара - пр. Ленина. Первая линия первый этаж. Напротив ТЦ Мелодия. Ранее располагался магазин оборудования для дома и ресторанов. Расположение объекта обеспечивает огромный пешеходный и автомобильный трафик. Отличные рекламные возможности. Витражные остекления. Сделан качественный дорогой ремонт, потолок - грильято, полы - итальянская плитка. Выделенная электрическая мощность 13кВт, с возможностью увеличения. На входе и по периметру помещения установлены раздвижные двери. Площадь помещения разделена на торговую зону 291 м., так же складская с разгрузочной зоной и офисная часть. Имеется подвал 70 метров. Напротив помещения расположен карман на 10 парковочных машин.

Читать полностью
    Позвонить Написать
    92 000 000 Р1 135 700 $ или 965 000
    Агент
    Лайф Групп
    +7 (933) 783-20-28
    Начать чат с агентом
    Похожие предложения
    Продам отдельно стоящее здание - Фото 1
    Продам отдельно стоящее здание - Фото 2
    От сoбcтвенника Бeз кoмиссии ПРОДAЕTСЯ ОTДЕЛЬНO СTОЯЩEE AДMИHИСТРАТИBHO-ПРOИЗBOДCTВEНHОE ЗДAHИЕ Aдрec: г.Cамаpа, пpoспект Каpлa Мaрксa, д.495a Идеaльнo подxодит для любыx видoв бизнеcа OCОБEHНОCTИ OБЪЕКТА:- Общая площадь: 6500 м. - Этажность: 2...
    • 1-й эт.
    91 000 000 Р
    Агент
    +7 (958) Показать номер
    Посмотреть контакты
    Помещение свободного назначения в Башкортостан, Уфа просп. Октября, ... - Фото 1
    Помещение свободного назначения в Башкортостан, Уфа просп. Октября, ... - Фото 2
    Продажа половины здания на Проспекте Октября, 119 с земельным участком (парковка) ?? Адрес: г. Уфа, Проспект Октября, 119Предложение:Продажа 3-го, 4-го этажей и цоколя в отдельно стоящем здании;Отдельная входная группа и запасной выход без пересечения...
    • -1/4 эт.
    92 283 000 Р
    Агент
    +7 (982) Показать номер
    Посмотреть контакты
    Продажа ПСН, м. Проспект Мира, Мира пр-кт. - Фото 1
    Продажа ПСН, м. Проспект Мира, Мира пр-кт. - Фото 2
    Продажа ПСН, м. Проспект Мира, Мира пр-кт. - Фото 3
    Продажа ПСН, м. Проспект Мира, Мира пр-кт. - Фото 4
    Продажа ПСН, м. Проспект Мира, Мира пр-кт. - Фото 5
    Продажа ПСН, м. Проспект Мира, Мира пр-кт. - Фото 6
    Продажа ПСН, м. Проспект Мира, Мира пр-кт. - Фото 7
    Продажа ПСН, м. Проспект Мира, Мира пр-кт. - Фото 8
    Продажа ПСН, м. Проспект Мира, Мира пр-кт. - Фото 9
    Продажа ПСН, м. Проспект Мира, Мира пр-кт. - Фото 10
    Продажа ПСН, м. Проспект Мира, Мира пр-кт. - Фото 11
    Продажа ПСН, м. Проспект Мира, Мира пр-кт. - Фото 12
    общая площадь 155.4м², полезная площадь 155.4м²

    Лот 156362. Предлагается в продажу торговое помещение, расположенное по адресу: г. Москва, пр-т Мира, 54. Первый этаж жилого дома. Пoмeщeние рaспoлoженo в пешей доступности от мeтро "Прocпeкт Миpa" (5 минут пешком). Сверхинтенсивный пешеходный трафик. Деловое...
    • 155.4 м²
    • 1-й эт.
    92 400 000 Р
    Агентство
    S5Development
    +7 (903) Показать номер
    Посмотреть контакты
    Продажа ПСН, м. ЦСКА, ул. Гризодубовой - Фото 1
    Продажа ПСН, м. ЦСКА, ул. Гризодубовой - Фото 2
    Продажа ПСН, м. ЦСКА, ул. Гризодубовой - Фото 3
    Продажа ПСН, м. ЦСКА, ул. Гризодубовой - Фото 4
    Продажа ПСН, м. ЦСКА, ул. Гризодубовой - Фото 5
    Продажа ПСН, м. ЦСКА, ул. Гризодубовой - Фото 6
    Продажа ПСН, м. ЦСКА, ул. Гризодубовой - Фото 7
    Продажа ПСН, м. ЦСКА, ул. Гризодубовой - Фото 8
    Продажа ПСН, м. ЦСКА, ул. Гризодубовой - Фото 9
    Продажа ПСН, м. ЦСКА, ул. Гризодубовой - Фото 10
    Продажа ПСН, м. ЦСКА, ул. Гризодубовой - Фото 11
    общая площадь 367м², полезная площадь 367м²

    Лот 148130. Продается помещение свободного назначения (автомойка) в ЖК Гранд Парк, по адресу: Москва, САО, ул. Гризодубовой, 2, площадью 367 м. Необычный полукруглый дом, построенный на Ходынском поле в 2007 году, является частью огромного комплекса...
    • 367 м²
    • -1-й эт.
    91 750 000 Р
    Агентство
    S5Development
    +7 (903) Показать номер
    Посмотреть контакты
    Продажа ПСН, м. Нижегородская, г.Москва - Фото 1
    Продажа ПСН, м. Нижегородская, г.Москва - Фото 2
    Продажа ПСН, м. Нижегородская, г.Москва - Фото 3
    Продажа ПСН, м. Нижегородская, г.Москва - Фото 4
    Продажа ПСН, м. Нижегородская, г.Москва - Фото 5
    Продажа ПСН, м. Нижегородская, г.Москва - Фото 6
    Продажа ПСН, м. Нижегородская, г.Москва - Фото 7
    Продажа ПСН, м. Нижегородская, г.Москва - Фото 8
    Продажа ПСН, м. Нижегородская, г.Москва - Фото 9
    Продажа ПСН, м. Нижегородская, г.Москва - Фото 10
    Продажа ПСН, м. Нижегородская, г.Москва - Фото 11
    Продажа ПСН, м. Нижегородская, г.Москва - Фото 12
    общая площадь 304.4м², полезная площадь 304.4м²

    Лот 12745. Продажа помещения под ресторан / кафе / офис / торговлю и т.д. (свободного назначения) в шаговой доступности от крупнейшего пересадочного узла ТПУ Рязанский. Помещение расположено на первом этаже БЦ «10». Здание состоит из пяти этажей. Помещения...
    • 304.4 м²
    • 1-й эт.
    91 320 000 Р
    Агентство
    S5Development
    +7 (903) Показать номер
    Посмотреть контакты

    Не нашли подходящего объявления?

    Оставьте заявку, и наши риэлторы подберут псн в районе Самары

    (0)