4 900 000 Р 64 880 $ или 55 500

Информация об помещении

2
Этаж

Состояние и оснащение

Количество этажей
11
Развернуть
Агент
+7 (917) 962-54-93
Начать чат с агентом

Помещение свободного назначения в Самарская область, Самара ...

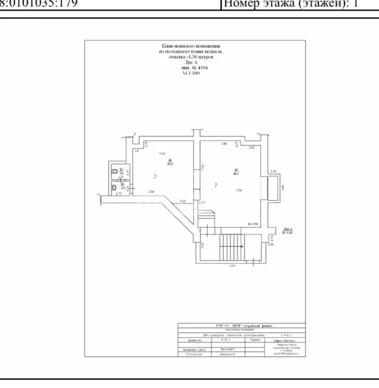
Продается универсальное нежилое помещение 114 кв.м. на первой линии в современном районе на ул. Партизанская 80а Отдельный вход с улицы, удобная планировка: 4 кабинета , все коммуникации, установлена пожарная сигнализация. Удобные подъездные пути, есть парковка. Высокий пешеходный трафик. Выделенная мощность 7.5 кВТ. Высота потолков 2.7м. Отлично подойдет под офис сферы услуг, салон красоты, небольшое производственное помещение и т. д. Возможно увеличение площади до 240 кв.м. Возможна продажа с арендатором. Звоните, покажем в удобное для вас время.

Читать полностью
    Позвонить Написать
    4 900 000 Р64 880 $ или 55 500
    Агент
    +7 (917) 962-54-93
    Начать чат с агентом
    Похожие предложения
    Помещение свободного назначения в Самарская область, Самара ул. ... - Фото 1
    Помещение свободного назначения в Самарская область, Самара ул. ... - Фото 2
    Номер объекта: 539244. Продается просторное, светлое помещение свободного назначения площадью 62.1 м2 с двумя большими окнами и кондиционером.Расположено на улице Водников 60 на 7 этаже 10 этажного бизнес-центра класса А Глобус.Характеристики и преимущества...
    • 7/10 эт.
    4 960 000 Р
    Агент
    +7 (919) Показать номер
    Посмотреть контакты
    Помещение свободного назначения в Самарская область, Самара ул. ... - Фото 1
    Помещение свободного назначения в Самарская область, Самара ул. ... - Фото 2
    Арт.Аренда помещения свободного назначения по адресу - улица Алексея Толстого, 30.Рядом с пересечением с улицей Комсомольская.Помещение расположено в подвальном этаже трехэтажного жилого дома.Площадь 237,4 кв.м.Отдельный вход со двора.Планировка: пять...
    • -1/3 эт.
    5 000 000 Р
    Агент
    +7 (989) Показать номер
    Посмотреть контакты
    Помещение свободного назначения в Самарская область, Сызрань ... - Фото 1
    Помещение свободного назначения в Самарская область, Сызрань ... - Фото 2
    Арт.Идеальное место для вашего бизнеса в самом сердце Сызрани Продается коммерческая недвижимость на цокольном этаже в центре города Площадь: 81,4 м — хватит на магазин, кафе, салон красоты, офис Почему это выгодно?• Центр города — отличная проходимость...
    • -1/3 эт.
    5 000 000 Р
    Агент
    +7 (987) Показать номер
    Посмотреть контакты
    Помещение свободного назначения в Самарская область, Тольятти ул. ... - Фото 1
    Помещение свободного назначения в Самарская область, Тольятти ул. ... - Фото 2
    На первом этаже жилого нового дома продаем коммерческое помещение. Отдельный вход. Сделан приличный ремонт. Имеется санузел. Окна выходят на восточную сторону.На первом этаже жилого дома можно разместить штат ТСН, пункт выдачи заказов, досуговый центр...
    • 1/12 эт.
    4 999 000 Р
    Агент
    +7 (917) Показать номер
    Посмотреть контакты
    Помещение свободного назначения в Самарская область, Сызрань Вольская ... - Фото 1
    Сбер А предлагает рассмотреть Лот Подробная информация и характеристики указаны в извещении. Комплекс:- нежилое здание площадью 311,2 кв. м, кадастровый номер 63:08:0111082:158, расположенное по адресу: Самарская область, г. Сызрань, ул. Вольская, 1-А;-...
    • 1/1 эт.
    4 913 000 Р
    Агент
    +7 (917) Показать номер
    Посмотреть контакты

    Не нашли подходящего объявления?

    Оставьте заявку, и наши риэлторы подберут псн в районе Самары

    (0)