75 000 000 Р 965 300 $ или 822 300

Информация об помещении

1
Этаж

Состояние и оснащение

Количество этажей
2
Развернуть
Агент
+7 (987) 818-57-50
Начать чат с агентом

Помещение свободного назначения в Самарская область, Самара ул. ...

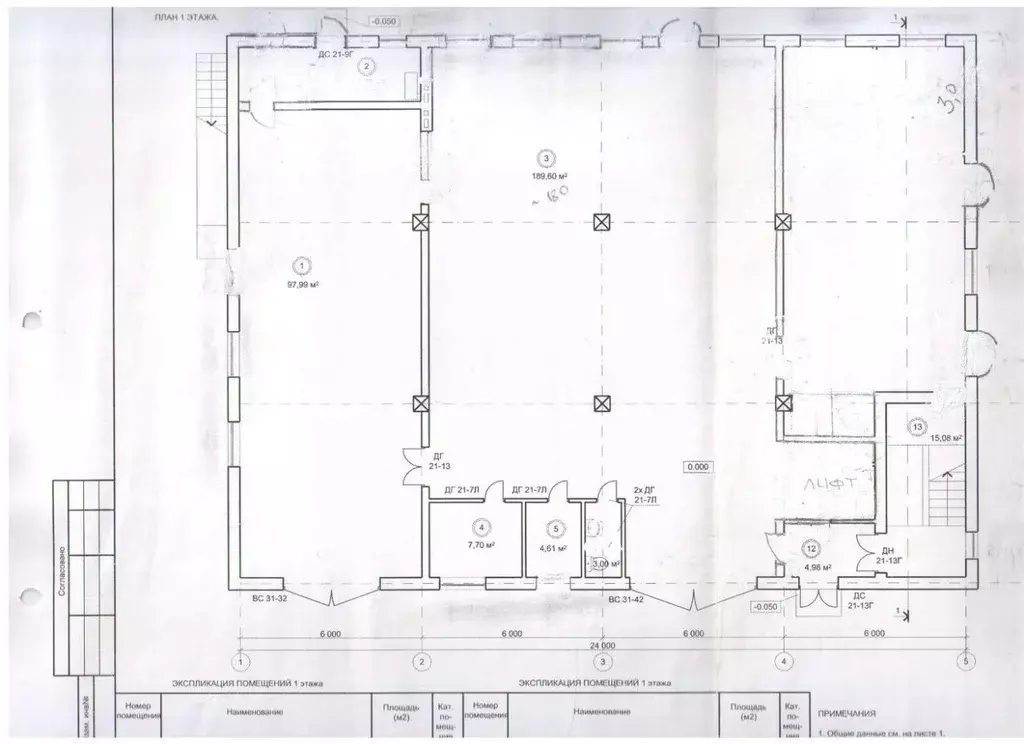
Продаю помещение на 1 линии.Продаю коммерческое помещение на первой линии. Удобные подъездные пути. Площадь здания 1042 м2Спереди здания асфальтированная площадка.Производственно-складское помещениеСостоит из 3 этажей.Характеристики:Новое здание построено с помощью новейших технологий.Окна теплые , 3 камерные известного производителя.- Теплое помещение отапливается собственной газовой котельной.- 2 этажное здание. С мансардной крышей.- Доступ 24/7- ХВС водоснабжение. Водонагреватель.- Несколько санузлов- Высота потолков 3,5 м- Высота ворот 3 м. ширина 4 метра. - Лифтовая шахта есть.Проект предусматривает установку лифта.- Подъемные ворота.- Напольное покрытие: Антипыль, Плитка- Предельная нагрузка 8 т /кв.м- Максимальная мощность 15 кВт с возможностью увеличения при необходимости.- Подъездные пути - Под грузовой транспорт- Площадка рядом с помещением , - Вся земля на территории покрыта асфальтом.- Место во дворе для маневра транспорта- Системы безопасности: Пожарная, Охранная, ВидеонаблюдениеАлександр А.Помощь с оформлением ипотеки и покупки в лизинг.Подписывайтесь на наш профиль, чтобы узнавать о новых локациях первыми Добавьте это объявление в избранное - чтобы не потерять.

Читать полностью
    Позвонить Написать
    75 000 000 Р965 300 $ или 822 300
    Агент
    +7 (987) 818-57-50
    Начать чат с агентом
    Похожие предложения
    Помещение свободного назначения в Самарская область, Самара пос. ... - Фото 1
    Помещение свободного назначения в Самарская область, Самара пос. ... - Фото 2
    Представляю вашему вниманию объект недвижимости — нежилое здание с земельным участком, расположенный в живописном районе города Самары.Описание объекта- Общая площадь здания: 2270,1 квадратных метров.- Площадь земельного участка: 3000 квадратных метров.-...
    • 1/3 эт.
    75 000 000 Р
    Агент
    +7 (987) Показать номер
    Посмотреть контакты
    Помещение свободного назначения в Красноярский край, Красноярск ул. ... - Фото 1
    Помещение свободного назначения в Красноярский край, Красноярск ул. ... - Фото 2
    ПЕРВАЯ ЛИНИЯ СВОЯ ПАРКОВКА Предлагается к продаже двухэтажное здание на 2-ой Брянской. Здание находится на первой линии с отдельной парковкой. Свободная планировка. Сделан качественный ремонт. Есть сан. узел. Горячая и холодная вода.Здание идеально подойдёт...
    • 1/2 эт.
    75 400 000 Р
    Агент
    +7 (985) Показать номер
    Посмотреть контакты
    Продажа ПСН, Балашиха, Балашиха г. о., Чистопольская ул - Фото 1
    Продажа ПСН, Балашиха, Балашиха г. о., Чистопольская ул - Фото 2
    Продажа ПСН, Балашиха, Балашиха г. о., Чистопольская ул - Фото 3
    Продажа ПСН, Балашиха, Балашиха г. о., Чистопольская ул - Фото 4
    Продажа ПСН, Балашиха, Балашиха г. о., Чистопольская ул - Фото 5
    Продажа ПСН, Балашиха, Балашиха г. о., Чистопольская ул - Фото 6
    Продажа ПСН, Балашиха, Балашиха г. о., Чистопольская ул - Фото 7
    Продажа ПСН, Балашиха, Балашиха г. о., Чистопольская ул - Фото 8
    Продажа ПСН, Балашиха, Балашиха г. о., Чистопольская ул - Фото 9
    Продажа ПСН, Балашиха, Балашиха г. о., Чистопольская ул - Фото 10
    общая площадь 636.9м², полезная площадь 636.9м²

    ПСН общей площадью 636,9 м2, находится в новом готовом ЖК Эдельвейс-Комфорт в г.Балашиха, до м. Щелковская 17 минут на транспорте. Помещение расположено на 1 этаже 16-ти этажного жилого монолитно-кирпичного дома. Высота потолков 3,5 метров, есть 2 отдельных...
    • 636.9 м²
    • 1-й эт.
    75 000 000 Р
    Агент
    +7 (903) Показать номер
    Посмотреть контакты
    Помещение свободного назначения в Татарстан, Казань ул. Аметьевская ... - Фото 1
    Помещение свободного назначения в Татарстан, Казань ул. Аметьевская ... - Фото 2
    Помещения свободного назначения в новом ЖК Голливуд в 5-ти минутах ходьбы от ст. метро Аметьево. Площадь 301,1м2 (так же использовать как два отдельных помещения по 150м2). Высокие потолки 4м. Перегородки гипсокартон. Два отдельных входа 24/7, есть...
    • 1/19 эт.
    75 275 000 Р
    Агент
    +7 (917) Показать номер
    Посмотреть контакты
    Помещение свободного назначения в Челябинская область, Челябинск ул. ... - Фото 1
    Помещение свободного назначения в Челябинская область, Челябинск ул. ... - Фото 2
    Лучшие коммерческие объекты в офисе агентства [А1] Недвижимость Продам отдельно-стоящее здание в центре Ленинского районаОбъект находится на остановке общественного транспорта, в шаговой доступности от новой прогулочной набережной. Вокруг плотный жилой...
    • 1/3 эт.
    75 000 000 Р
    Агент
    +7 (919) Показать номер
    Посмотреть контакты

    Не нашли подходящего объявления?

    Оставьте заявку, и наши риэлторы подберут псн в районе Самары

    (0)