72 000 000 Р 907 800 $ или 775 300

Информация об помещении

1
Этаж

Состояние и оснащение

Количество этажей
13
Развернуть
Агент
+7 (919) 816-59-48
Начать чат с агентом

Помещение свободного назначения в Самарская область, Самара просека ...

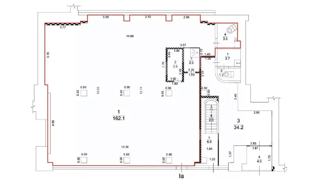
Продается универсальное помещение - Паркинг, в оживленном районе г. Самара, на 5 Просеке д. 95б ЖК НАДЕЖДА. Есть ворота для въезда небольших грузовых автомобилей и отдельный вход, выделенная мощность 30кВт. Свободная планировка. Идеально под размещение производства, продуктового магазина, или склада крупной компании. Шаг колонн 6 метров. Над помещением расположены несколько этажей нежилых помещений.

Читать полностью
    Позвонить Написать
    72 000 000 Р907 800 $ или 775 300
    Агент
    +7 (919) 816-59-48
    Начать чат с агентом
    Похожие предложения
    Помещение свободного назначения в Москва Союз жилой комплекс, к3 (75 ... - Фото 1
    Помещение свободного назначения в Москва Союз жилой комплекс, к3 (75 ... - Фото 2
    908657 . Предлагаем помещение свободного назначения формата street-retail в ЖК Союз , площадью 75 кв. м, расположенное на первом этаже 25-этажного жилого дома. Без комиссии для покупателя.Преимущества объекта:-ЖК состоит из 6 корпусов переменной этажности...
    • 1/25 эт.
    72 765 957 Р
    Агент
    +7 (938) Показать номер
    Посмотреть контакты
    Помещение свободного назначения в Московская область, Ступино ... - Фото 1
    Помещение свободного назначения в Московская область, Ступино ... - Фото 2
    663988 . Предлагаем помещение свободного назначения формата Street Retail с якорным арендатором - магазином Дикси , площадью 363,2 кв. м., расположенное на первом этаже жилого дома. Без комиссии для покупателя.Преимущества объекта:-первая линия улицы...
    • 1/5 эт.
    71 900 000 Р
    Агент
    +7 (938) Показать номер
    Посмотреть контакты
    Помещение свободного назначения в Московская область, Люберцы Зенино ... - Фото 1
    Помещение свободного назначения в Московская область, Люберцы Зенино ... - Фото 2
    644773 . Предлагаем помещение свободного назначения формата street-retail с арендатором ВинЛаб в ЖК Люберцы , площадью 214.3 кв. м, расположенное на первом этаже 17-этажного жилого дома. Без комиссии для покупателя.Преимущества объекта:-на пересечении...
    • 1/17 эт.
    72 000 000 Р
    Агент
    +7 (938) Показать номер
    Посмотреть контакты
    Помещение свободного назначения в Московская область, Одинцово ... - Фото 1
    Помещение свободного назначения в Московская область, Одинцово ... - Фото 2
    635071 . Предлагаем торговое помещение формата street-retail с арендатором ВкусВилл в ЖК Одинград . Квартал Семейный , корпус 1, площадью 208.9 кв. м, расположенное на первом этаже 25-этажного жилого дома. Без комиссии для покупателя.Преимущества объекта:-ЖК...
    • 1/25 эт.
    73 000 000 Р
    Агент
    +7 (938) Показать номер
    Посмотреть контакты
    Помещение свободного назначения в Москва ул. Красная Пресня, 7 (95 м) - Фото 1
    Помещение свободного назначения в Москва ул. Красная Пресня, 7 (95 м) - Фото 2
    Лот 997153 Предложение от Собственника Предлагается офисное помещение 94,5 м в доме бизнес-класса Красная Пресня 7 , расположенном в престижном Пресненском районе. Объект находится в 3 минутах пешком от метро Баррикадная и в непосредственной близости...
    • 1/9 эт.
    73 000 000 Р
    Агент
    +7 (986) Показать номер
    Посмотреть контакты

    Не нашли подходящего объявления?

    Оставьте заявку, и наши риэлторы подберут псн в районе Самары

    (0)