251 880 000 Р 3 302 600 $ или 2 758 900

Информация об помещении

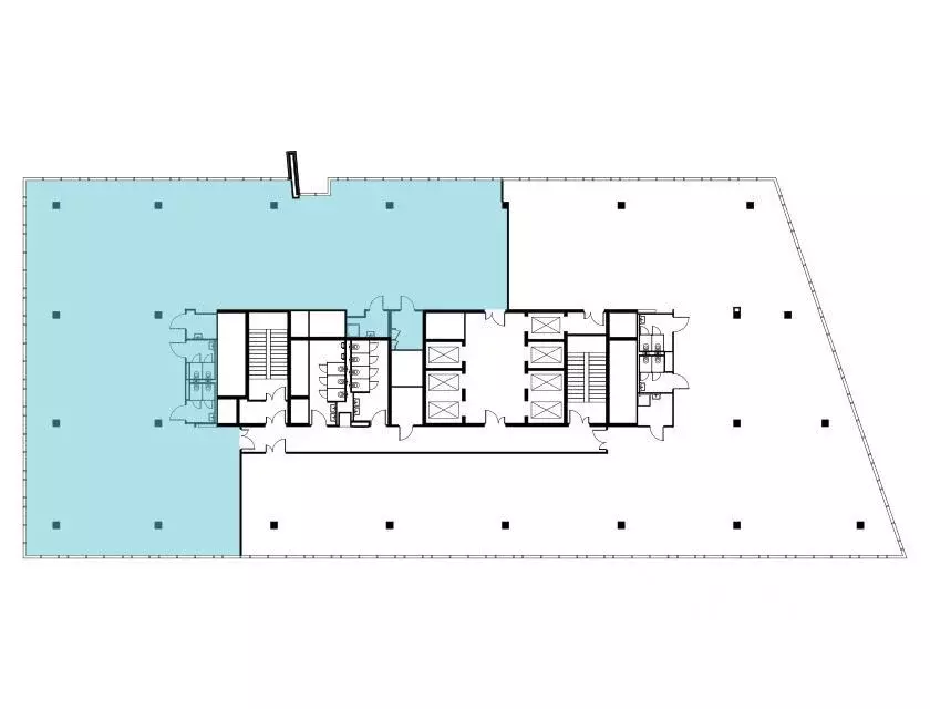
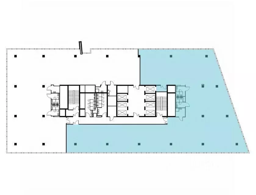
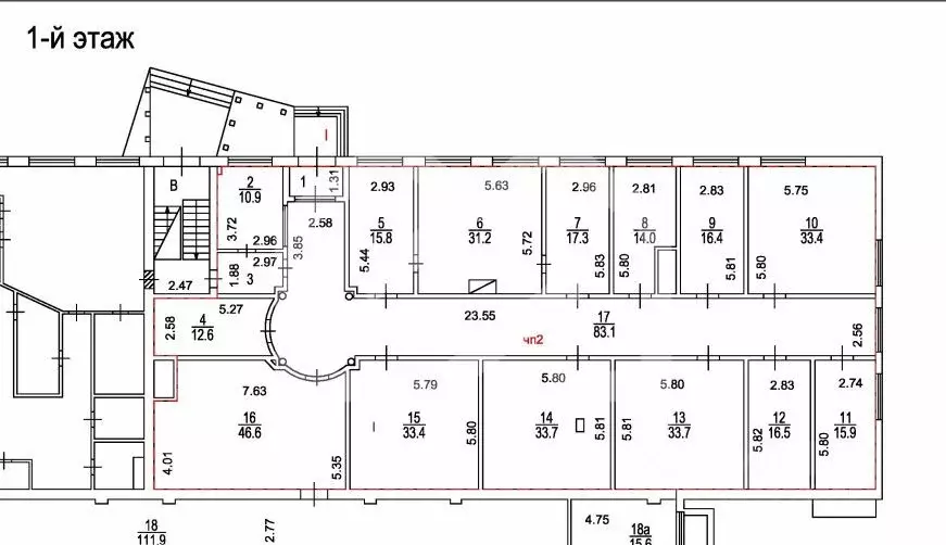
1
Этаж

Состояние и оснащение

Количество этажей
3
Развернуть
Агент
+7 (934) 475-95-70
Начать чат с агентом

Торговая площадь в Самарская область, Самара Московское ш., 106 (6297 ...

Продаётся нежилое помещение в здании популярного торгового центра Хофф, расположенном на 1 линии одной из основных магистралей города Московское шоссе. Объект продается, как действующий арендный бизнес в формате ТЦ районного значения. Здание торгового центра находится в центральном престижном районе города многоэтажной современной застройки - Октябрьский. Рядом расположены остановки общественного транспорта, ТЦ Охотный ряд, Региональный деловой центр, жилые комплексы Город мира, Париж, Гастелло, центральный автовокзал, ресторан Вкусно и точка и т.д. У ТЦ отличные подъездные пути с разных районов города, большая парковка. Удобное расположение торгового центра на 1 линии Московского шоссе делает его очень популярным и востребованным для жителей города.Высокий транспортный и пешеходный трафик в течение всего дня.Помещение находится в цокольном этаже в здании торгового центра с витринным остеклением, имеет пять отдельных входов, два из которых центральные с первой линии Московского шоссе, свободную планировку, высокие потолки 4 метра, ж/б перекрытия, все коммуникации, современные системы вентиляции и кондиционирования. Удобная зона разгрузки. Для удобства посетителей на объекте есть также траволатор на первый этаж. В здании торгового центра на 1 этаже размещены различные магазины мебели, товаров для дома и т.д. На 2, 3 этаже уже больше 10 лет успешно работает популярный мебельный центр Хофф. Объект сдан в долгосрочную аренду сетевым федеральным арендаторам. Стоимость продажи /кв

Читать полностью
    Позвонить Написать
    251 880 000 Р3 302 600 $ или 2 758 900
    Агент
    +7 (934) 475-95-70
    Начать чат с агентом
    Похожие предложения
    Продажа торгового помещения, м. Ховрино, ул. Дыбенко - Фото 1
    Продажа торгового помещения, м. Ховрино, ул. Дыбенко - Фото 2
    Продажа торгового помещения, м. Ховрино, ул. Дыбенко - Фото 3
    Продажа торгового помещения, м. Ховрино, ул. Дыбенко - Фото 4
    Продажа торгового помещения, м. Ховрино, ул. Дыбенко - Фото 5
    Продажа торгового помещения, м. Ховрино, ул. Дыбенко - Фото 6
    общая площадь 833.7м², реализуемая площадь 833.7м²

    Продажа торгового помещения с сетевым арендатором Магнит! 3 минуты от станции метро Ховрино. Помещение общей площадью 833,7 кв.м расположено на 1-м этаже и в подвале отдельно стоящего здания. Подвал - 374,4 кв.м (h-2,60) , 1 этаж - 443,1 кв.м (h-4,05)....
    • 833.7 м²
    • 1/1 эт.
    260 000 000 Р
    Агент
    +7 (903) Показать номер
    Посмотреть контакты
    Продажа торгового помещения, м. Верхние Лихоборы, Дмитровское ш. - Фото 1
    Продажа торгового помещения, м. Верхние Лихоборы, Дмитровское ш. - Фото 2
    Продажа торгового помещения, м. Верхние Лихоборы, Дмитровское ш. - Фото 3
    Продажа торгового помещения, м. Верхние Лихоборы, Дмитровское ш. - Фото 4
    Продажа торгового помещения, м. Верхние Лихоборы, Дмитровское ш. - Фото 5
    Продажа торгового помещения, м. Верхние Лихоборы, Дмитровское ш. - Фото 6
    общая площадь 357.7м², реализуемая площадь 357.7м²

    Продажа торгового помещения площадью 357,7 кв.м (только 1 этаж), открытая планировка. Арендатор - банк ВТБ, один из самых надежных арендаторов Москвы. Долгосрочный договор аренды с января 2016 г. до 23 марта 2029 года. МАП ГАП Окупаемость 9,9 лет....
    • 357.7 м²
    • 1/12 эт.
    255 000 000 Р
    Агент
    +7 (903) Показать номер
    Посмотреть контакты
    Торговая площадь в Амурская область, Благовещенск Загородная ул., 100 ... - Фото 1
    Продается действующий ТЦ Дом Дача в г. Благовещенске расположенный по адресу: ул. Загородная 100. Расположен на земельном участке в собственности 5679 м кв.Торговый центр объект капитального строительства площадью 3820 м кв. Идеальное размещение под...
    • 1/2 эт.
    250 000 000 Р
    Агент
    +7 (914) Показать номер
    Посмотреть контакты
    Торговая площадь в Москва ул. Академика Семенихина, 2 (580 м) - Фото 1
    Торговая площадь в Москва ул. Академика Семенихина, 2 (580 м) - Фото 2
    Продаётся торговое помещение площадью 579.6 кв. м. в новостройке Бизнес-центр Level Work Воронцовская по адресу Москва, ЮЗАО, Обручевский, ул. Академика Семенихина, 2. Помещение со свободной планировкой. Окна с видом на улицу. Высота потолков 3.70 м....
    • 18/23 эт.
    250 753 406 Р
    Агент
    +7 (967) Показать номер
    Посмотреть контакты
    Торговая площадь в Москва ул. Академика Семенихина, 2 (580 м) - Фото 1
    Торговая площадь в Москва ул. Академика Семенихина, 2 (580 м) - Фото 2
    Продаётся торговое помещение площадью 580.4 кв. м. в новостройке Бизнес-центр Level Work Воронцовская по адресу Москва, ЮЗАО, Обручевский, ул. Академика Семенихина, 2. Помещение со свободной планировкой. Окна с видом на улицу. Высота потолков 3.70 м....
    • 19/23 эт.
    253 053 069 Р
    Агент
    +7 (967) Показать номер
    Посмотреть контакты

    Не нашли подходящего объявления?

    Оставьте заявку, и наши риэлторы подберут торговое помещение в районе Самары

    (0)