Будьте осторожны при перечислении предоплаты!
Для вашей безопасности предварительно рекомендуем запрашивать документы на объект недвижимости и подтверждение заключения сделки.

Россия, Самарская область, Самара, улица Евгения Золотухина, 10
16 000 Р

Информация о квартире

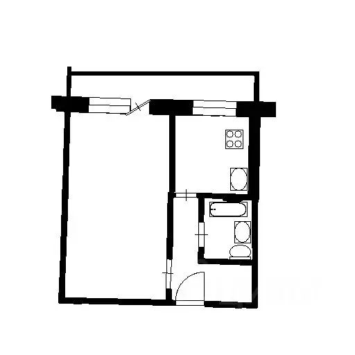
33 м2
Площадь
17 м2
Жилая
10 м2
Кухня
1
Комната
1
Этаж
3
Этажность

Дополнительная информация

Тип дома
кирпичный
Развернуть
Агент
+7 (933) 783-32-04
Начать чат с агентом

1-к кв. Самарская область, Самара Крутые Ключи мкр, ул. Евгения ...

АРЕНДАСдаётся на длительный период 1 км. квартира. В Крутых Ключах по адресу: ул. Золотухина д. 10, на 1 этаже, общей площадью 33 кв.м., состояние хорошее, все что нужно для проживания есть: диван, 2 шкафа, кухонный гарнитур, св. печь, холодильник, стиральная машинка, сдается порядочным платежеспособным арендаторам. Без животных.оплата: + ку (залог 7. можно разделить на 2 месяца).Квартира сдаётся от агентства недвижимости, комиссия 50 по факту заселения.-----Примечание: у собственника могут быть дополнительные пожелания к жильцам - обсудите их в чате или по телефону

Читать полностью

    Для того, чтобы снять однокомнатную квартиру по адресу: Самара, улица Евгения Золотухина, 10, позвоните по телефону +7 (933) 783-32-04. Торопитесь! Объявление №30094020033 об аренде однокомнатной квартиры опубликовано 05 марта 2026.

    Позвонить Написать
    16 000 Р
    Агент
    +7 (933) 783-32-04
    Начать чат с агентом
    Похожие предложения
    1-к кв. Самарская область, Самара Крутые Ключи мкр, ул. Евгения ... - Фото 1
    1-к кв. Самарская область, Самара Крутые Ключи мкр, ул. Евгения ... - Фото 2
    1-комнатная квартира, общая площадь 33м², жилая 17м², кухня 11м²

    Сдам на длительный срок, для проживания всё есть, холодильник, стиральная машина, диван раскладной, шкаф, телевизор, кухонный гарнитур, стол, стулья, микроволновка, посуда. Оплата в месяц+ком.услуги по счетчикам и квитанциям(примерно 2000р.), залог который...
    • 33 м²
    • 1-ком
    • 1/3 эт.
    • 67%
    15 000 Р
    Агент
    +7 (987) Показать номер
    Посмотреть контакты
    2-к кв. Самарская область, Самара проезд Мальцева, 10 (48.0 м) - Фото 1
    2-к кв. Самарская область, Самара проезд Мальцева, 10 (48.0 м) - Фото 2
    2-комнатная квартира, общая площадь 48м², жилая 30м²

    Сдаётся 2ух комнатная квартира.Рядом: детский сад, поликлиника, ТЦ Ди-Порт, рынок Норд.В квартире есть всё необходимое: телевизоры(2), стиральная машина, холодильник, водонагреватель, 3 спальных Можно семьям с детьми, без животных.
    • 48 м²
    • 2-ком
    • 2/9 эт.
    • 50%
    16 000 Р
    Агент
    +7 (917) Показать номер
    Посмотреть контакты
    2-к кв. Самарская область, Самара ул. Советской Армии, 146 (45.0 м) - Фото 1
    2-к кв. Самарская область, Самара ул. Советской Армии, 146 (45.0 м) - Фото 2
    2-комнатная квартира, общая площадь 45м²

    Комиссия по данному объекту составляет 40 от месячной стоимости. Квартира со всей необходимой для комфортного проживания мебелью и техникой. Просторные и светые комнаты. Полностью оборудованная техникой кухня. Квартира находится в районе с развитой инфраструктурой,...
    • 45 м²
    • 2-ком
    • 2/5 эт.
    • 40%
    17 000 Р
    Агент
    +7 (919) Показать номер
    Посмотреть контакты
    1-к кв. Самарская область, Самара Черемшанская ул., 238 (30.0 м) - Фото 1
    1-к кв. Самарская область, Самара Черемшанская ул., 238 (30.0 м) - Фото 2
    1-комнатная квартира, общая площадь 30м², жилая 18м², кухня 7м²

    КОМИССИЯ 50 ПРОЦЕНТОВ.Сдается однокомнатная квартира. Имеется вся необходимая мебель и техника.Арендная плата 17000 + коммунальные платежи. Залог 5000Немного о нас:- Оплата наших услуг проводится единовременно , по факту вашего заселения.- У нас интернет...
    • 30 м²
    • 1-ком
    • 3/5 эт.
    • 50%
    17 000 Р
    Агент
    +7 (938) Показать номер
    Посмотреть контакты
    1-к кв. Самарская область, Самара Крутые Ключи мкр, бул. Маршала ... - Фото 1
    1-к кв. Самарская область, Самара Крутые Ключи мкр, бул. Маршала ... - Фото 2
    1-комнатная квартира, общая площадь 30м², жилая 15м², кухня 8м²

    Сдается на срок 5 месяцев (возможно дольше).Сдаем одной женщине.Без животных. Заселение сразу.Отдельная спальня и светлая кухня студия. Вместительный кухонный гарнитур, экономный двухконтурный котел, микроволновка, комод, новый шкаф в спальне, стиральная...
    • 30 м²
    • 1-ком
    • 3/3 эт.
    • кирпичный
    15 000 Р
    Агент
    +7 (987) Показать номер
    Посмотреть контакты

    Не нашли подходящего объявления?

    Оставьте заявку, и наши риэлторы подберут квартиру в районе Самары

    (0)