72 000 Р 921 $ или 793

Информация о помещении и здании

1
Этаж
16
Этажность
Развернуть
Агент
+7 (987) 818-57-50
Начать чат с агентом

Офис в Самарская область, Самара просека 6-я, 155 (90 м)

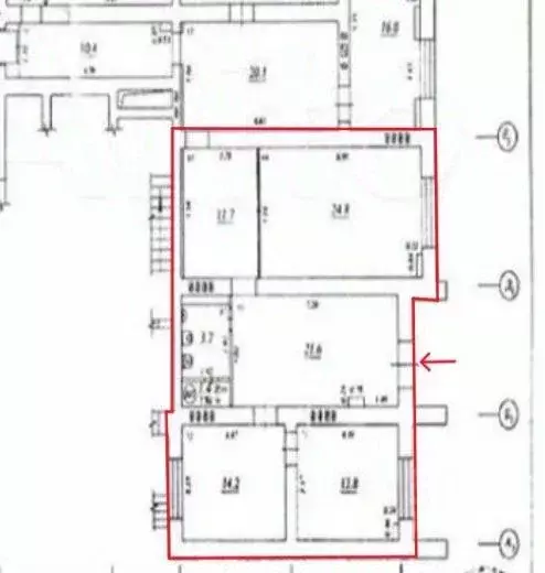
От собственника Без комиссии Характеристики:- Отдельная входная группа- Доступ 24/7- ХВС/ГВС- Свой санузел- Центральное отопление- Есть кондиционер- Чистовой ремонт- Кабинетная планировка- Жилой домДополнительная информация:Сдаётся в аренду помещение свободного назначения, состоящего из 5 комнат, общей площадью 90 м2 на 1 этаже в 16-ти этажном жилом доме. Отдельный вход. Доступ 24/7. Высота потолков 2,7 м. Пол - керамогранит, стены - окрашены, потолок — натяжной, Армстронг. Выделенная мощность 5 кВт. Кондиционеры, охранно-пожарная сигнализация, система видеонаблюдения. Парковка перед помещением. Остановка общественного транспорта - 200 м.В ближайшем окружении: супермаркет Пятёрочка, супермаркет Магнит, магазин КиБ, аптеки Вита, Апрель, Аптечка, ПВЗ Озон, ВБ, Яндекс Маркет и т.д.Возможно использовать под: офис, магазин, салон красоты, сервисный центр, услуги, пункт выдачи и т.д. По всем вопросам можете обращаться к представителю собственника: Григорий.Добавьте это объявление в избранное - чтобы не потерять.

Читать полностью
    Позвонить Написать
    72 000 Р921 $ или 793
    Агент
    +7 (987) 818-57-50
    Начать чат с агентом
    Похожие предложения
    Офис в Самарская область, Самара Московское ш., 17 (46 м) - Фото 1
    Офис в Самарская область, Самара Московское ш., 17 (46 м) - Фото 2
    14-й этаж, всего 27 этажей

    Арт.Аренда помещения в многофункциональном центре Вертикаль по адресу - Московское шоссе, 17.Ближайшее пересечение - с улицей Гагарина. В окружении располагаются: строящиеся ЖК Самара Сити , Баланс Tower и Король Лев , построенный ЖК Королев ,...
    • 14/27 эт.
    72 400 Р
    Агент
    +7 (989) Показать номер
    Посмотреть контакты
    Офис в Самарская область, Самара просп. Карла Маркса, 360а (90 м) - Фото 1
    Офис в Самарская область, Самара просп. Карла Маркса, 360а (90 м) - Фото 2
    2-й этаж, всего 16 этажей

    Аренда готовых офисов с ремонтом. Сдаются современные офисные помещения от 28 до 90 кв.м на втором этаже. Помещения выполнены в кабинетной планировке. Перед зданием есть место для парковки автотранспорта клиентов и сотрудников. Предоставляется место на...
    • 2/16 эт.
    72 000 Р
    Агент
    +7 (987) Показать номер
    Посмотреть контакты
    Офис в Самарская область, Самара просп. Карла Маркса, 360а (90 м) - Фото 1
    Офис в Самарская область, Самара просп. Карла Маркса, 360а (90 м) - Фото 2
    2-й этаж, всего 16 этажей

    Аренда готовых офисов с ремонтом. Сдаются современные офисные помещения от 28 до 90 кв.м на втором этаже. Помещения выполнены в кабинетной планировке. Перед зданием есть место для парковки автотранспорта клиентов и сотрудников. Предоставляется место на...
    • 2/16 эт.
    72 000 Р
    Агент
    +7 (987) Показать номер
    Посмотреть контакты
    Офис в Санкт-Петербург ш. Революции, 69Ак102 (56 м) - Фото 1
    Офис в Санкт-Петербург ш. Революции, 69Ак102 (56 м) - Фото 2
    3-й этаж, всего 4 этажа

    Сдается в аренду офисное помещение 56 м.кв. Расположено на третьем этаже. Открытая планировка.В хорошем состоянии. Выполнена стандартная офисная отделка. Закрытая территория с местом для отдыха, система контроля доступа, парковка, в том числе гостевая,...
    • 3/4 эт.
    72 800 Р
    Агент
    +7 (911) Показать номер
    Посмотреть контакты
    Офис в Свердловская область, Екатеринбург ул. Большакова, 97 (51 м) - Фото 1
    Офис в Свердловская область, Екатеринбург ул. Большакова, 97 (51 м) - Фото 2
    цокольный этаж, всего 2 этажа

    Предлагается в аренду офисное помещение площадью 50, 8 кв. м. в Центре города, напротив парка Зеленая роща . Современный красивый офис.Без комиссии для арендаторов.-административное здание, соседние компании: караоке-антикафе, органы государственного...
    • -1/2 эт.
    71 120 Р
    Агент
    +7 (912) Показать номер
    Посмотреть контакты

    Не нашли подходящего объявления?

    Оставьте заявку, и наши риэлторы подберут офис в районе Самары

    (0)