120 000 Р 1 540 $ или 1 320

Информация об помещении

1
Этаж

Состояние и оснащение

Количество этажей
9
Развернуть
Агент
+7 (987) 818-57-50
Начать чат с агентом

Помещение свободного назначения в Самарская область, Самара Бобруйская ...

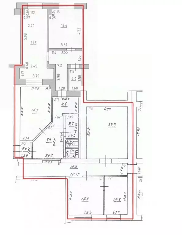
Аренда помещения свободного назначения.Аренда помещения с отдельным входом.- Площадь 240 м. кв.- 1 линия- Отдельная входная группа- Общая парковка- Есть возможность разместить вывеску- Погрузка/разгрузка: Запасной вход, Главный вход- Доступ 24/7- ХВС/ГВС- Свой санузел- Центральное отопление- Приточная вентиляция- Максимальная мощность 30 кВт- Стрит ритейл- Имеется запасной выход- С окнами- Встроено-пристроенное помещениеПо свободным площадям уточняйте дополнительно.Елена Т. Помощь с оформлением ипотеки и покупки в лизинг.Подписывайтесь на наш профиль, чтобы узнавать о новых локациях первыми Добавьте это объявление в избранное - чтобы не потерять.

Читать полностью
    Позвонить Написать
    120 000 Р1 540 $ или 1 320
    Агент
    +7 (987) 818-57-50
    Начать чат с агентом
    Похожие предложения
    Помещение свободного назначения в Самарская область, Самара ул. ... - Фото 1
    Помещение свободного назначения в Самарская область, Самара ул. ... - Фото 2
    Арт.Предлагается в аренду коммерческое помещение, расположенное на пересечении ул. Гагарина, 139/ул. Советской Армии.В пешей доступности находятся остановки общественного транспорта, супермаркет Пятерочка , ювелирный магазин, стоматологическая клиника...
    • 1/5 эт.
    117 720 Р
    Агент
    +7 (989) Показать номер
    Посмотреть контакты
    Аренда помещенияСдаю в аренду апартаменты площадью 155,2 кв. м. с отдельным входом.- Просторная кухня- гостиная.- Кабинет с балконом, - Бильярдная комната с расположенной в ней сауной, душевой комнатой , сан. узлом.- 3 изолированные спальные комнаты...
    • 3/16 эт.
    120 000 Р
    Агент
    +7 (987) Показать номер
    Посмотреть контакты
    Помещение свободного назначения в Самарская область, Самара Самарская ... - Фото 1
    Помещение свободного назначения в Самарская область, Самара Самарская ... - Фото 2
    Сдаётся в аренду нежилое помещение площадью 178, 5 м2 на втором этаже 9ти этажного дома по адресу:Самара, Ленинский район, Самарская 95а.Основные характеристики и преимущества помещения:- высокая транспортная доступность, близость остановок муниципального...
    • 2/9 эт.
    130 000 Р
    Агент
    +7 (919) Показать номер
    Посмотреть контакты
    Помещение свободного назначения в Самарская область, Самара ... - Фото 1
    Помещение свободного назначения в Самарская область, Самара ... - Фото 2
    Арт.. Ново-Садовая| 1 этаж |170 кв.м| парковка на 20 машин| вывеска с максимальным охватом УНИКАЛЬНОЕ ПРЕДЛОЖЕНИЕ 170 м на золотой локации. Ваш бизнес у всех на виду.Пересечение пешеходных и автомобиных потоков. Платежеспособная аудитория сама идет...
    • 1/13 эт.
    127 500 Р
    Агент
    +7 (987) Показать номер
    Посмотреть контакты
    Помещение свободного назначения в Самарская область, Самара ... - Фото 1
    Помещение свободного назначения в Самарская область, Самара ... - Фото 2
    Номер объекта: 116867Менеджер объекта: Сызранцева Надежда Предлагается в аренду универсальное помещение в доме бизнес- класса, ЖК Бриг , расположенного в географическом центре города- ул. Ново- Садовая, 106М (пересечение с ул. Лейтенанта Шмидта) ...
    • 1/21 эт.
    128 000 Р
    Агент
    +7 (917) Показать номер
    Посмотреть контакты

    Не нашли подходящего объявления?

    Оставьте заявку, и наши риэлторы подберут псн в районе Самары

    (0)