14 500 Р 174 $ или 153

Информация об помещении

цоколь
Этаж

Состояние и оснащение

Количество этажей
10
Развернуть
Агент
+7 (917) 823-86-57
Начать чат с агентом

Помещение свободного назначения в Самарская область, Самара Дачная ...

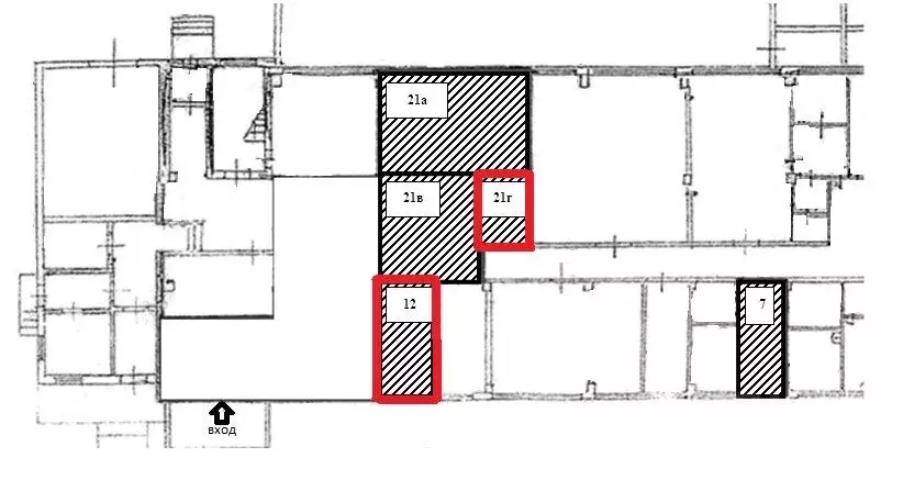
Хорошая проходимость Первая линия, большой спальный массив Доступ 24/7, потолки 3 м, кондиционер, мокрая точка, вытяжка, интернет, место под рекламу на фасаде. Перегородку и вытяжку можно убрать. СобственникДачная, стрит ритейл, торговля, услуги, офис, салон, косметология, парикмахерская, массаж, магазин, маникюр, ресницы, брови, цветы, тату, швейный цех, кондитерская, типография, звукозапись, мастерская, кухня, склад

Читать полностью
    Позвонить Написать
    14 500 Р174 $ или 153
    Агент
    +7 (917) 823-86-57
    Начать чат с агентом
    Похожие предложения
    Помещение свободного назначения в Самарская область, Самара ... - Фото 1
    Помещение свободного назначения в Самарская область, Самара ... - Фото 2
    Данные получены с сайта ГИС Торги.Согласно документации
    • 4 этажа
    15 278 Р
    Агент
    +7 (917) Показать номер
    Посмотреть контакты
    Помещение свободного назначения в Самарская область, Сызрань ул. ... - Фото 1
    Помещение свободного назначения в Самарская область, Сызрань ул. ... - Фото 2
    Сдается в аренду помещение свободного назначения площадью 36 кв. м на 1 этаже. Отдельный вход, улучшенный ремонт, коммуникации центральные, электрическая мощность 5 кВт, высокие потолки 4,6 м, большие и светлые окна.Здание находится на первой линии в...
    • 1/5 эт.
    14 400 Р
    Агент
    +7 (917) Показать номер
    Посмотреть контакты
    Помещение свободного назначения в Мордовия, Саранск ул. Лодыгина, 3 ... - Фото 1
    Помещение свободного назначения в Мордовия, Саранск ул. Лодыгина, 3 ... - Фото 2
    Данные получены с сайта ГИС Торги.реконструкция 2012 год, стены кирпичные, остекленная металлоконструкция, перекрытия ж/бетонная конструкция, крыша - мягкая кровля, полы - керамогранитная плитка, оконные проемы стеклопакеты ПВХ, внутренняя отделка -...
    • 4 этажа
    14 763 Р
    Агент
    +7 (987) Показать номер
    Посмотреть контакты
    Помещение свободного назначения в Москва, Москва, Зеленоград ул. ... - Фото 1
    Помещение свободного назначения в Москва, Москва, Зеленоград ул. ... - Фото 2
    Помещение правильной прямоугольной формы площадью 18 кв.м. расположено на втором этаже коридорно-кабинетной планировки, в отдельно стоящем нежилом здании. Лифта нет.Свободное назначение: офис, склад, мини-мастерская и др. Отопление есть. Мокрой точки...
    • 2/2 эт.
    16 000 Р
    Агент
    +7 (923) Показать номер
    Посмотреть контакты
    Помещение свободного назначения в Владимирская область, Киржач ... - Фото 1
    Помещение свободного назначения в Владимирская область, Киржач ... - Фото 2
    сдается в аренду готовое помещение, в прошлом году был сделан косметический ремонт, с новой мебелью
    • 3/3 эт.
    15 000 Р
    Агент
    +7 (910) Показать номер
    Посмотреть контакты

    Не нашли подходящего объявления?

    Оставьте заявку, и наши риэлторы подберут псн в районе Самары

    (0)