433 800 Р 6 090 $ или 5 260

Информация об помещении

2
Этаж

Состояние и оснащение

Количество этажей
2
Развернуть
Агент
+7 (989) 305-31-25
Начать чат с агентом

Помещение свободного назначения в Самарская область, Самара Молодежная ...

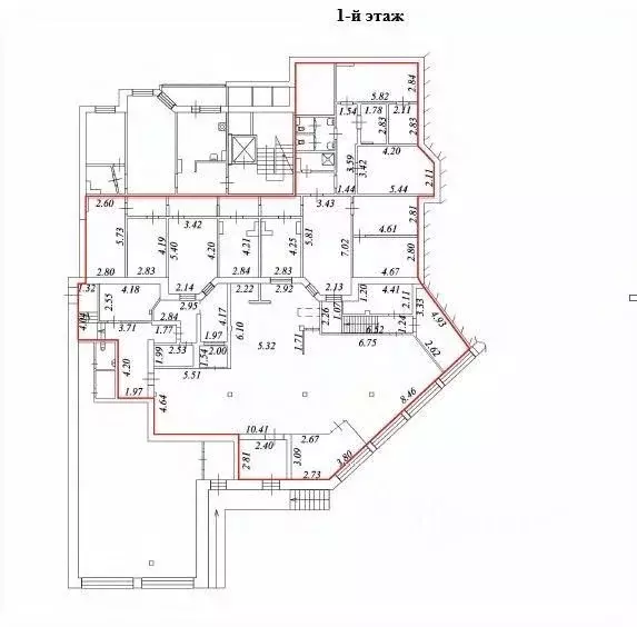
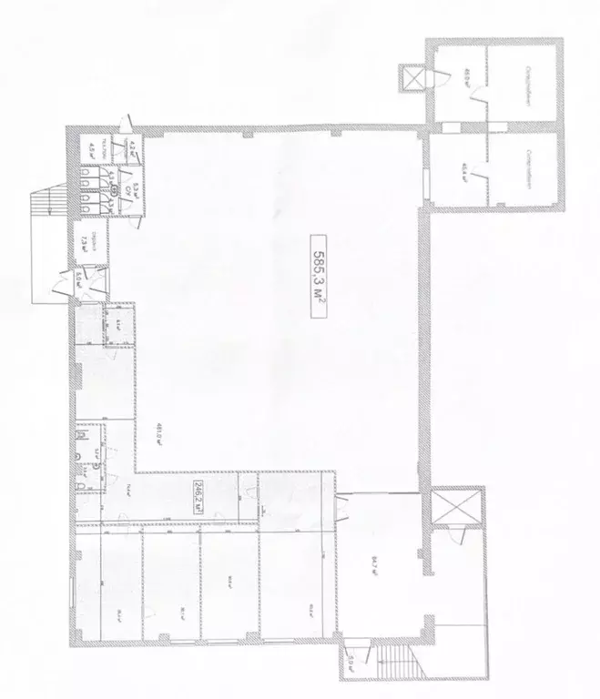
Арт.Сдается в аренду помещение свободного назначения по адресу: Самарская область, г.Самара, ул.Молодежная, д.2 Условия аренды обсуждаются в индивидуальном порядке.Площадь - 482 кв м.Отличное расположение на трафике и наличие парковки. - качественный ремонт из современных материалов; - свободная планировка; кабинеты по требованию;- все коммуникации;- 2 лифта и 4 отдельных входа; эвакуационный выход;- высота потолка 4,3 м; - гостевая парковка перед зданием. Месторасположение в густонаселенном, растущем районе, выгодная локация для бизнеса различного направления: детские развлекательные парки, торговые объекты, различные форматы общепита, офисы.На 1 этаже магазин Пятерочка , аптека, Пвз и другие.Сдача одному арендатору.

Читать полностью
    Позвонить Написать
    433 800 Р6 090 $ или 5 260
    Агент
    +7 (989) 305-31-25
    Начать чат с агентом
    Похожие предложения
    Помещение свободного назначения в Калининградская область, Калининград ... - Фото 1
    Помещение свободного назначения в Калининградская область, Калининград ... - Фото 2
    Код объекта: 1298158.Сдается в аренду коммерческое помещение в центре города Площадь: 275 кв.мАдрес: Первая линия Советского проспектаВысота потолков: 3,5 мПреимущества и перспективы для вашего бизнеса:•Высокий поток клиентов: расположение в зоне с активным...
    • 1/5 эт.
    420 000 Р
    Агент
    +7 (981) Показать номер
    Посмотреть контакты
    Помещение свободного назначения в Нижегородская область, Нижний ... - Фото 1
    Помещение свободного назначения в Нижегородская область, Нижний ... - Фото 2
    Номер объекта: 1640533. Сдам помещение 350 м в Нижнем Новгороде — идеально под Пятёрочку , Магнит , Чижик Адрес: ул. Федосеенко, д. 64к1, Сормовский район, Нижний Новгород Объект: Современное отдельно стоящее здание в деловой зоне — готово к запуску...
    • 1/3 эт.
    420 000 Р
    Агент
    +7 (910) Показать номер
    Посмотреть контакты
    Помещение свободного назначения в Омская область, Омск ул. ... - Фото 1
    Помещение свободного назначения в Омская область, Омск ул. ... - Фото 2
    АН Аркада-Стиль предлагает в аренду помещение общей площадью 543 кв м.Здание расположено в центре города.Самый современный офисный комплекс в городе на Орджоникидзе, д7 , прекрасная инфраструктура.Площадь помещения 543 кв. м., находится на 4 этаже,...
    • 5/9 эт.
    433 600 Р
    Агент
    +7 (913) Показать номер
    Посмотреть контакты
    Помещение свободного назначения в Ростовская область, Ростов-на-Дону ... - Фото 1
    Помещение свободного назначения в Ростовская область, Ростов-на-Дону ... - Фото 2
    БЕЗ КОМИССИИ Уникальное предложение: аренда помещения на третьем этаже 550 м2 в ТЦ Жасмин на кольце Доватора/Мадояна Мы предлагаем вам аренду просторного помещения с множеством преимуществ, которое станет отличной основой для успешной деятельности.Преимущества...
    • 3/4 эт.
    440 000 Р
    Агент
    +7 (918) Показать номер
    Посмотреть контакты
    Помещение свободного назначения в Тюменская область, Тюмень ... - Фото 1
    Помещение свободного назначения в Тюменская область, Тюмень ... - Фото 2
    БЕЗ КОМИССИИ ДЛЯ АРЕНДАТОРА Сдам в apeнду помещение свободного назначения с ремонтом 350 кв.м. в Заречной части гoрода на 1 линии. Преимущества:- Круглосуточный доступ- Высокие потолки- Свободная планировка- Выcoкий пешеходный и автомобильный трaфик...
    • 2/2 эт.
    420 000 Р
    Агент
    +7 (982) Показать номер
    Посмотреть контакты

    Не нашли подходящего объявления?

    Оставьте заявку, и наши риэлторы подберут псн в районе Самары

    (0)