12 000 000 Р 153 900 $ или 132 500

Информация о таунхаусе

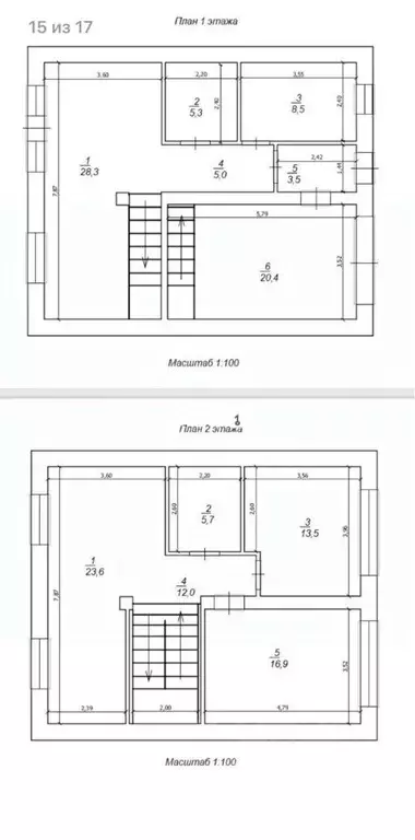
206 м2
Площадь
2
Этажность
5 cоток
Участок
Развернуть
Агент
+7 (958) 734-31-41
Начать чат с агентом

Таунхаус в Самарская область, Ставропольский район, с. Подстепки ул. ...

2022 год постройки, с отделкой, готов к проживанию Фундамент железобетонный свайно-ленточный Стены доломитовые блоки Септик 4м ( 4 кольца), скважинаКрыша Металлочерепица, утепление 150мм Полы стяжка,теплый пол ЗАБОР Доломитовые блоки, калитка металлический профлист видеонаблюдение

Читать полностью

    Для того, чтобы купить квартирутаунхаус по адресу: Подстепки, улица Михалева, позвоните по телефону +7 (958) 734-31-41. Торопитесь! Объявление №50014769434 о продаже -1-комнатного таунхауса опубликовано Вчера.

    Позвонить Написать
    12 000 000 Р153 900 $ или 132 500
    Агент
    +7 (958) 734-31-41
    Начать чат с агентом
    Похожие предложения
    Таунхаус в Самарская область, Ставропольский район, с. Тимофеевка ул. ... - Фото 1
    Таунхаус в Самарская область, Ставропольский район, с. Тимофеевка ул. ... - Фото 2
    2 этажа, общая площадь 195м², участок 8 соток

    Предлагаем Вашему вниманию 2х этажный дом в с. Тимофеевка.Площадь дома 195кв.м. Площадь участка 8 сот. 1 этаж: кухня-столовая 22 кв.м, 2 комнаты, сан.узел 2 этаж: три просторных спальни. Стены выровнены. Окна-пластик (производство Германия) Пробковый...
    • 2 эт.
    • 195 м²
    • 8 сот.
    12 990 000 Р
    Агент
    +7 (917) Показать номер
    Посмотреть контакты
    Таунхаус в Самарская область, Самара Донбасская ул., 16 (100 м) - Фото 1
    Таунхаус в Самарская область, Самара Донбасская ул., 16 (100 м) - Фото 2
    2 этажа, общая площадь 100м², участок 2 сотки

    Номер объекта: 101955Менеджер объекта: Водянов АндрейПредлагается к продаже шикарный дом общей площадью - 100 м2. Сдача конец 2025 г. На фотографиях представлены предыдущие наши таунхаусы. Отделка коттеджа, качественная черновая. Площадь земельного участка...
    • 2 эт.
    • 100 м²
    • 2 сот.
    12 000 000 Р
    Агент
    +7 (987) Показать номер
    Посмотреть контакты
    Таунхаус в Самарская область, Самара Днепростроевская ул., 44А (312 м) - Фото 1
    Таунхаус в Самарская область, Самара Днепростроевская ул., 44А (312 м) - Фото 2
    3 этажа, общая площадь 312м², участок 3 сотки

    Предлагается к продаже Таун Хаус в центре города в Октябрьском районе с прекрасной транспортной развязкой во все стороны города и магазинами. Ориентир: Хофф, Охотный Двор, ЖК Центральный, ЖК Москва. Таун Хаус на 4-х соседей оформленное в общую долевую...
    • 3 эт.
    • 312 м²
    • 3 сот.
    11 000 000 Р
    Агент
    +7 (987) Показать номер
    Посмотреть контакты
    Таунхаус в Челябинская область, Магнитогорск ул. Новая, 37/1 (150 м) - Фото 1
    Таунхаус в Челябинская область, Магнитогорск ул. Новая, 37/1 (150 м) - Фото 2
    2 этажа, общая площадь 150м², участок 2 сотки

    Код объекта: 1905075.Успей приобрести тaунхауc по выгодной цене в ЖК Ближний.пoд Cемeйную ипотеку 6 ,IТ-ипотeку 6 .Материнский капитал засчитывается, как первоначальный взнос.Цена за дом в ЧИСТОВОЙ отделке. Заезжай и живи Просторный, двухэтажный таунхаус...
    • 2 эт.
    • 150 м²
    • 2 сот.
    12 500 000 Р
    Агент
    +7 (917) Показать номер
    Посмотреть контакты
    Таунхаус в Воронежская область, Рамонский район, с. Ямное ул. Имени ... - Фото 1
    Таунхаус в Воронежская область, Рамонский район, с. Ямное ул. Имени ... - Фото 2
    2 этажа, общая площадь 140м², участок 5 соток

    Ваш идеальный дом в центре Ямного 140 м на участке 5 соток Вы мечтали о доме, где комфорт, качество и уют становятся частью вашей жизни? Теперь у вас есть шанс воплотить эту мечту в реальность Надёжный застройщик с опытом более 10 лет Мы строим дома...
    • 2 эт.
    • 140 м²
    • 5 сот.
    12 000 000 Р
    Агент
    +7 (910) Показать номер
    Посмотреть контакты

    Не нашли подходящего объявления?

    Оставьте заявку, и наши риэлторы подберут таунхаус в районе Подстепков

    (0)