50 000 000 Р 615 600 $ или 532 800

Информация об помещении

1
Этаж

Состояние и оснащение

Количество этажей
1
Развернуть
Агент
+7 (987) 819-07-53
Начать чат с агентом

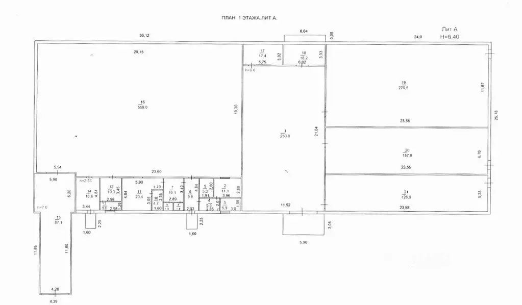
Производственное помещение в Самарская область, Ставропольский район, ...

ПРОДАЖА. Объект коммерческой недвижимости (производственного или складского назначения). Объект расположен в промышленной зоне села Ягодное, Ставропольского района Самарской области. Расстояние до ОЭЗ Тольятти - 6,5 км (15-20 минут), АО АВТОВАЗ, трасса Обход ТольяттиПлощадь: ЗДАНИЯ- 1638 м2, земельного участока-1га. Коммуникации (вода, электричество, газ). Все объекты недвижимости в собственности, без обременений. Виды использования объекта: ПРОИЗВОДСТВО (в то числе для запчастей на автомобили), СКЛАД с возможностью хранения скоропортящейся продукции (смонтирована система охлаждения в холодильниках). Небольшой ЛОГИСТИЧЕСКИЙ ЦЕНТР. С возможностью строительства дополнительного объекта с отдельным подъездомДоступность: свободный подъезд к объекту с площадкой для стоянки и разворота грузовых автомобилей различной длины. Имеется удобный пандус с рампой для разгрузочно- погрузочных работ с регулировкой по высоте. ЗДАНИЕ: материал стен металлоконструкция обшита металлом и сэндвич панелями, перегородки - сэндвич панели. По всему зданию полы бетонные(качественные).Дополнительно: для сотрудников имеются раздевалки с душевыми кабинами, туалеты, в офисной части здания - кабинеты.B настоящее время сдан в аренду и используется как цех по переработке и хранению плодовоовощной продукции. Имеются в наличии дизельные и электрические кары с вилочными погрузчиками, оцениваются отдельно. Самая низкая цена за 1 кв.м. в этом районе.Объект продается в связи с необходимость увеличения оборотного капитала.

Читать полностью
    Позвонить Написать
    50 000 000 Р615 600 $ или 532 800
    Агент
    +7 (987) 819-07-53
    Начать чат с агентом
    Похожие предложения
    Производственное помещение в Самарская область, Волжский район, ... - Фото 1
    Производственное помещение в Самарская область, Волжский район, ... - Фото 2
    Производственное складское помещение в пос. Черновском. Общая площадь здания 3272 кв.м, состоящее из 2 корпусов соединенных между собой: площадь 1 корпуса 1512,80 кв.м; площадь 2 корпуса 1516,20 кв.м; помещение соединяющих 2 корпуса площадь - 243 кв.м:...
    • 1/1 эт.
    49 500 000 Р
    Агент
    +7 (917) Показать номер
    Посмотреть контакты
    Производственное помещение в Самарская область, Новокуйбышевск ул. ... - Фото 1
    Производственное помещение в Самарская область, Новокуйбышевск ул. ... - Фото 2
    Продается готовый бизнес - бетонный заавод с современным итальянским оборудованием (планетарная перемешивание) , предусмотрена одновременная загрузка 4-х разных инертных материалов , 3- х видов цемента и 3- х типов химических добавок , ( в работе можно...
    • 1/2 эт.
    50 000 000 Р
    Агент
    +7 (989) Показать номер
    Посмотреть контакты
    Производственное помещение в Свердловская область, Екатеринбург ул. ... - Фото 1
    Производственное помещение в Свердловская область, Екатеринбург ул. ... - Фото 2
    ПРЕДЛАГАЕТСЯ в ПОКУПКУ ПРОИЗВОДСТВЕННОЕ ПОМЕЩЕНИЕ 621. 2 кв. м. , на земельном участке 686 кв. м. , всё в собственности.Без комиссии для покупателя. - объект находится в Октябрьском районе, на территории завода РАДИОАППАРАТУРЫ , в непосредственной близости...
    • 1/1 эт.
    49 950 000 Р
    Агент
    +7 (912) Показать номер
    Посмотреть контакты
    Производственное помещение в Свердловская область, Богданович ... - Фото 1
    Производственное помещение в Свердловская область, Богданович ... - Фото 2
    Объект 180972. В продаже производственно- складское здание (отдельно стоящее) 900 кв.м. в собственности. Договор с федеральным арендатором . Локация: г.Богданович ул.Первомайская д.12а Промышленный кластер вдоль железной дороги с одной стороны и муниципальной...
    • 1/1 эт.
    50 000 000 Р
    Агент
    +7 (912) Показать номер
    Посмотреть контакты
    Производственное помещение в Московская область, Жуковский ул. ... - Фото 1
    Производственное помещение в Московская область, Жуковский ул. ... - Фото 2
    Уникальный номер помещения. Транспортная доступность: Егорьевское (Р-10) ш., Новорязанское (М-5) ш., Рязанское ш.; Удаленность от МКАД: 15 км; .Строительство современного производственно-складского комплекса класса А формата light industrial Удобное...
    • 1/3 эт.
    49 123 800 Р
    Агент
    +7 (980) Показать номер
    Посмотреть контакты

    Не нашли подходящего объявления?

    Оставьте заявку, и наши риэлторы подберут производственное помещение в районе Ягодного

    (0)