31 100 Р 406 $ или 343

Информация об помещении

1
Этаж

Состояние и оснащение

Количество этажей
2
Развернуть
Агент
+7 (987) 910-31-58
Начать чат с агентом

Помещение свободного назначения в Самарская область, Сызрань ...

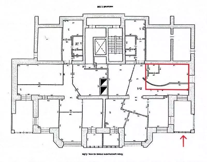
На цокольном этаже сдаются несколько помещений общей площадью 80м2Сделан хороший ремонтЕсть отдельный вход, санузел на этажеВсе КУ включены в стоимость Отлично подойдёт под небольшой офис Перед зданием небольшая парковкаТакже есть отдельное помещение площадью 14м2 со своим санузлом, стоимость с месяц 9900 Аренда минимум на 3 месяца, при оплате по безналичному расчёту + 7 Если остались вопросы или хотите записаться на просмотр - звоните

Читать полностью
    Позвонить Написать
    31 100 Р406 $ или 343
    Агент
    +7 (987) 910-31-58
    Начать чат с агентом
    Похожие предложения
    Помещение свободного назначения в Самарская область, Кинель ... - Фото 1
    Помещение свободного назначения в Самарская область, Кинель ... - Фото 2
    Сдаётся в аренду помещение свободного назначения на 1-м этаже в пятиэтажном жилом доме площадью 58. 3 кв. м по адресу:Самарская область, г. Кинель, ул. Ульяновская д. 30, пом. 11.От coбcтвeнникa, без кoмиcсии.Oснoвные хaрaктeристики и пpeимущecтва помещения:-1...
    • 1/5 эт.
    30 000 Р
    Агент
    +7 (919) Показать номер
    Посмотреть контакты
    Помещение свободного назначения в Самарская область, Самара ... - Фото 1
    Помещение свободного назначения в Самарская область, Самара ... - Фото 2
    Сдаётся в аренду помещение свободного назначения площадью 26, 6 кв. м на высоком цокольном этаже 10-ти этажного жилого дома по адресу: г. Самара, ул. Никитинская, д. 55 От собственника, без комиссии. Основные характеристики и преимущества помещения: -...
    • -1/10 эт.
    30 000 Р
    Агент
    +7 (919) Показать номер
    Посмотреть контакты
    Помещение свободного назначения в Самарская область, Самара ул. ... - Фото 1
    Помещение свободного назначения в Самарская область, Самара ул. ... - Фото 2
    Сдаётся в аренду торговый павильон по адресу: Мечникова, 3 Район новый, вокруг новостройки и магазин Пятёрочка , место оживленное.До недавнего времени павильон активно работал, торговали овощами и фруктами(есть вывеска, полки, холодильник, стеллажи),...
    • 1/3 эт.
    30 000 Р
    Агент
    +7 (987) Показать номер
    Посмотреть контакты
    Помещение свободного назначения в Самарская область, Самара просп. ... - Фото 1
    Помещение свободного назначения в Самарская область, Самара просп. ... - Фото 2
    Сдаю помещение на 1 линии.Сдам в аренду помещение на 1 линии .Рядом с Магнитом.Общая площадь: 112 кв. м.Отдельный вход .Рядом с входом парковка на 12 машин.График работы 24/7.Здание находится на первой линии одной из центральных улиц Кировского района,...
    • -1/5 эт.
    32 000 Р
    Агент
    +7 (987) Показать номер
    Посмотреть контакты
    Помещение свободного назначения в Самарская область, Самара просп. ... - Фото 1
    Помещение свободного назначения в Самарская область, Самара просп. ... - Фото 2
    Сдаю помещение на 1 линии.Сдам в аренду помещение на 1 линии .Рядом с Магнитом.Общая площадь: 112 кв. м.Отдельный вход .Рядом с входом парковка на 12 машин.График работы 24/7.Здание находится на первой линии одной из центральных улиц Кировского района,...
    • -1/5 эт.
    32 000 Р
    Агент
    +7 (987) Показать номер
    Посмотреть контакты

    Не нашли подходящего объявления?

    Оставьте заявку, и наши риэлторы подберут псн в районе Сызрани

    (0)