Реализация объекта недвижимости приостановлена

Информация о квартире

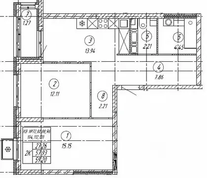
55.0 м2
Площадь
24.0 м2
Жилая
16.0 м2
Кухня
2
Комнаты
5
Этаж
9
Этажность

Дополнительная информация

Тип дома
кирпичный
Развернуть

2-к кв. Самарская область, Тольятти ул. 40 лет Победы, 31Б (55.5 м)

В продаже 2к квартира площадью 55.5 м на 5 этаже в новом кирпичном доме УСЛОВИЯ ПОКУПКИ:— Квартира подходит под ставку 4.6 — Взнос 2.158. Р— Платёж 30.973 тыс Р в месяц— Жить рядом с лесом и каждый день наслаждаться свежим воздухом, гулять вечерами по прогулочной аллее и не переживать за безопасность своих детишек. Что может быть прекраснее? — Ответ: жилой комплекс Ёлки парк ГДЕ ПОКУПАЕМ?— Расположение: 14А квартал - это одно из самых востребованных мест для проживания в г.Тольятти — В пешей доступности имеется абсолютно всё для комфортной жизни. Рядом Лес, ТЦ, кафе и рестораны, детский сад и многое другое. Строится долгожданная школа на 1.100 мест. ПРО ВАШУ КВАРТИРУ:— 2к площадью 55.5 м— Просторная кухня гостиная 16.4 м с выходом на лоджию с панорамным остеклением S 2.9 м— 2 спальни площадью 13.1 и 11.7 м— Совмещенный санузел 4.4 м— Вместительная прихожая 8.4 м— Квартира сдаётся в предчистовой отделкеЧТО ВАС ЖДЁТ ВНУТРИ ЖК:— Площадь жилого комплекса 5,5 Га— Девяти этажный дом из красного керамического кирпича и вентилируемым фасадом— Закрытая территория, внутренний двор без машин, большая прогулочная аллея и светящийся пешеходный фонтан всё это исключительно для жителей комплекса — Озеленение с элементами геопластики— Детские и спортивные площадки с многоуровневыми горками для разных возрастов— Зоны отдыха для взрослого населенияПОСМОТРЕТЬ КВАРТИРУ МОЖНО В БУДНИЕ И В ВЫХОДНЫЕ ДНИ ПО ПРЕДВАРИТЕЛЬНОЙ ЗАПИСИ ЗВОНИТЕ

Читать полностью

    Реализация объекта недвижимости приостановлена

    Не нашли подходящего объявления?

    Оставьте заявку, и наши риэлторы подберут квартиру в новостройке в районе Тольятти

    (0)