Реализация объекта недвижимости приостановлена

Информация о квартире

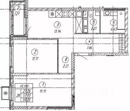
75.0 м2
Площадь
29.0 м2
Жилая
10.0 м2
Кухня
2
Комнаты
2
Этаж
15
Этажность
Развернуть

2-к кв. Самарская область, Тольятти Булгаков жилой комплекс (75.0 м)

Вашему вниманию представляю:Жилой комплекс БУЛГАКОВ-находиться в топовой локации города, вблизи от леса В продаже новая 2-х комнатная квартира , с выходом на собственную террасу 29м Отделка черновая , радиаторы, счетчики для воды, электричества и системы отопления.На территории комплекса расположена детская площадка. Ландшафтный дизайн с авто-поливом.Рядом ведется строительство новой современной школы.В шаговой доступности расположена вся необходимая инфраструктура: детские сады, школы, медицинские учреждения, кафе, торговые центры, магазины, фитнес центры и салоны красоты.Сдача дома запланирована на 3 квартал 2025 годаПодробная информация по звонку

Читать полностью

    Реализация объекта недвижимости приостановлена

    Не нашли подходящего объявления?

    Оставьте заявку, и наши риэлторы подберут квартиру в новостройке в районе Тольятти

    (0)