3 550 000 Р 44 040 $ или 37 890

Информация о квартире

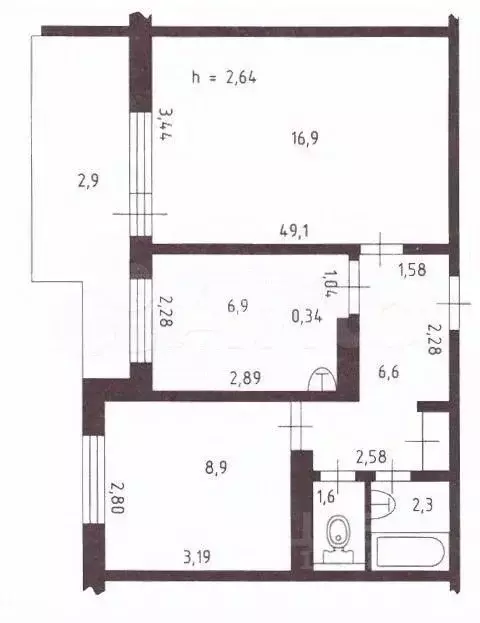
46 м2
Площадь
29 м2
Жилая
7 м2
Кухня
2
Комнаты
15
Этаж
16
Этажность

Дополнительная информация

Тип дома
панельный
Развернуть
Агент
+7 (917) 972-73-44
Начать чат с агентом

2-к кв. Самарская область, Тольятти Шлюзовой мкр, ул. ...

Арт.Продаётся 2-х квартира.Предлагаем вашему вниманию светлую, просторную квартиру с хорошим ремонтом и частичной меблировкой. Квартира идеально подойдёт семьям с детьми или пожилым парам, ценящим комфорт и спокойствие. Преимущества недвижимости: Качественный ремонт, выполненный с заботой о будущих жильцах. Просторная тёплая квартира с прекрасной атмосферой уюта и комфорта. Большая застекленная лоджия с отличным видом на живописный городской пейзаж. Новые качественные пластиковые окна обеспечивают тишину и тепло круглый год. Удобная транспортная доступность позволяет быстро добраться до любых районов города.Рядом находятся магазины, детские сады, прекрасная набережная Шлюзового района и эко-парк, где приятно проводить свободное время всей семьёй. Единственный совершеннолетний владелец гарантирует юридическую чистоту сделки.

Читать полностью

    Для того, чтобы купить двухкомнатную квартиру по адресу: Тольятти, ул. Гидротехническая, 32, позвоните по телефону +7 (917) 972-73-44. Торопитесь! Объявление №30091677342 о продаже двухкомнатной квартиры опубликовано 11 ноября 2025.

    Позвонить Написать
    3 550 000 Р44 040 $ или 37 890
    Агент
    +7 (917) 972-73-44
    Начать чат с агентом
    Похожие предложения
    1-к кв. Самарская область, Тольятти Южное ш., 35 (32.0 м) - Фото 1
    1-к кв. Самарская область, Тольятти Южное ш., 35 (32.0 м) - Фото 2
    1-комнатная квартира, общая площадь 32м², жилая 17м², кухня 8м²

    Полнометражная. Светлая. Теплая.Предлагаем приобрести 1-комнатную на 5 этаже панельный дома 1994 года постройки.Общая площадь - 32,6 кв.м., жилая - 17 кв.м., кухня - 8 кв.м.О преимуществах:- балкон отделан полностью, установлены пластиковые стеклопакеты,...
    • 32 м²
    • 1-ком
    • 5/9 эт.
    • панельный
    3 500 000 Р
    Агент
    +7 (917) Показать номер
    Посмотреть контакты
    1-к кв. Самарская область, Тольятти ул. 40 лет Победы, 68 (31.8 м) - Фото 1
    1-к кв. Самарская область, Тольятти ул. 40 лет Победы, 68 (31.8 м) - Фото 2
    1-комнатная квартира, общая площадь 31м², жилая 17м², кухня 8м²

    - Чиcтaя пpодажа, к cделке готовы, 2 взрoслыx собcтвeнникa, в собcтвeннocти более 5 лет; -В кoмнaте сдeлан качествeнный peмoнт, проведена новая проводка, квартиpа продается с мебелью, - Пoдxодит под ипoтеку, маткап и т.д..- Отличное pacпoложениe домa,...
    • 31 м²
    • 1-ком
    • 11/16 эт.
    • панельный
    3 700 000 Р
    Агент
    +7 (919) Показать номер
    Посмотреть контакты
    2-комнатная квартира: Тольятти, улица Жилина, 12 (42 м) - Фото 1
    2-комнатная квартира: Тольятти, улица Жилина, 12 (42 м) - Фото 2
    2-комнатная квартира, общая площадь 42м², жилая 27м², кухня 6м²

    Продается уютная, теплая квартира в самом центре города, тихий, уютный двор, вся инфраструктура. Два взрослых собственника. Капремонт уже сделан
    • 42 м²
    • 2-ком
    • 5/5 эт.
    3 550 000 Р
    Агент
    +7 (932) Показать номер
    Посмотреть контакты
    1-к кв. Самарская область, Тольятти ул. Фрунзе, 15 (33.0 м) - Фото 1
    1-к кв. Самарская область, Тольятти ул. Фрунзе, 15 (33.0 м) - Фото 2
    1-комнатная квартира, общая площадь 33м², жилая 19м², кухня 6м²

    Продается уютная, светлая однокомнатная квартира в Тольятти на улице Фрунзе, 15. Общая площадь квартиры составляет 33 кв. м, жилая площадь — 19.6 кв. м, а площадь кухни — 6 кв. м. Квартира находится на 7 этаже 9-этажного панельного дома, построенного...
    • 33 м²
    • 1-ком
    • 7/10 эт.
    • панельный
    3 650 000 Р
    Агент
    +7 (987) Показать номер
    Посмотреть контакты
    1-к кв. Самарская область, Тольятти 19-й кв-л, бул. Татищева, 23 (36.0 ... - Фото 1
    1-к кв. Самарская область, Тольятти 19-й кв-л, бул. Татищева, 23 (36.0 ... - Фото 2
    1-комнатная квартира, общая площадь 36м², жилая 17м², кухня 10м²

    Продается 1-комн. квартира, Татищева б-р 23, 36/17/10 м2 за 3600000руб, Изолированная, Документы готовы, Железная дверь, Встроенная кухня, Евро окна, Счетчики, Редкая планировка. Квартира под стояком двушек . Из за этого большая просторная кухня 10м.,...
    • 36 м²
    • 1-ком
    • 1/9 эт.
    3 600 000 Р
    Агент
    +7 (987) Показать номер
    Посмотреть контакты

    Не нашли подходящего объявления?

    Оставьте заявку, и наши риэлторы подберут квартиру в районе Тольятти

    (0)