Реализация объекта недвижимости приостановлена

Информация о квартире

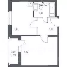
39.0 м2
Площадь
19.0 м2
Жилая
9.0 м2
Кухня
1
Комната
1
Этаж
10
Этажность

Дополнительная информация

Тип дома
панельный
Развернуть

1-к кв. Самарская область, Тольятти Калмыцкая ул., 36 (39.4 м)

Срочно Продается однокомнатная квартира по адресу: Калмыцкая улица, 36, Тольятти. Общая площадь квартиры составляет 39.4 кв. м, из которых 19 кв. м отведено под жилую зону, а кухня занимает 9 кв. м. Квартира расположена на 1 этаже 10-этажного панельного дома, построенного в 2002 году. Высота потолков — 2.6 метра, что создает ощущение простора.В квартире выполнен косметический ремонт, поэтому можно сразу заехать и жить. Уютная комната с выходом на балкон станет отличным местом для отдыха. Кухня оборудована всем необходимым для комфортного приготовления пищи. Санузел совмещенный, что позволяет более рационально использовать пространство. Окна выходят на улицу, обеспечивая естественное освещение.Дом находится в хорошем состоянии, оснащен пассажирским лифтом и мусоропроводом. Удобная парковка во дворе позволит без проблем разместить автомобиль. Рядом с домом расположены все необходимые объекты инфраструктуры: школы, детские сады, клиники и магазины. Это делает проживание здесь особенно комфортным для семей с детьми.Квартира продается без обременений. Все документы готовы к сделке. Ипотека приветствуется, возможна любая форма расчета. Агентская комиссия обсуждается индивидуально. Приглашаем вас на просмотр Звоните и записывайтесь на удобное для вас время. Эта квартира может стать вашим уютным домом уже сегодня.

Читать полностью

    Реализация объекта недвижимости приостановлена

    Не нашли подходящего объявления?

    Оставьте заявку, и наши риэлторы подберут квартиру в районе Тольятти

    (0)