5 950 000 Р 76 520 $ или 65 990

Информация о квартире

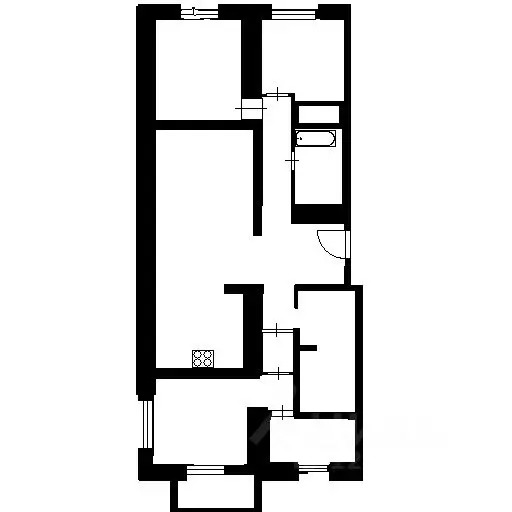
65 м2
Площадь
42 м2
Жилая
8 м2
Кухня
3
Комнаты
5
Этаж
9
Этажность

Дополнительная информация

Тип дома
панельный
Развернуть
Агент
+7 (917) 962-94-99
Начать чат с агентом

3-к кв. Самарская область, Тольятти ул. 70 лет Октября, 16 (65.6 м)

Арт.Эксклюзивная продажа 3-комнатная квартира с ремонтом и мебелью в престижном районе. Предлагается к продаже просторная трёхкомнатная квартира в отличном состоянии, расположенная в престижном и спокойном районе. Объект полностью готов к комфортному проживанию — квартира частично меблирована. Ключевые преимущества: - Хорошее состояние: Полностью выровненные стены и полы. Квартира светлая, ухоженная и абсолютно чистая. - Удачное расположение в доме: 5-й этаж 9-этажного кирпичного дома. Квартира — не торцевая и не примыкает к лифтовой шахте, что гарантирует тишину и приватность. - Правильная планировка: Классическая московская планировка ( самолёт ) с изолированными комнатами. - Готовность к заселению: Квартира укомплектована всей мебелью и техникой (за исключением холодильника). Вы можете переехать сразу. - Качественная комплектация: Установлены пластиковые окна (включая балконный блок), натяжные потолки в гостиной и коридоре, ровные окрашенные потолки в комнатах и на кухне. Межкомнатные двери — качественные, входная — утеплённая, с ночным замком. - Полная документальная и техническая готовность: Все счетчики воды с действующей поверкой (документы в наличии). В квартире имеется кладовая комната, где произведена замена стояка. В доме проживают тихие и добропорядочные соседи. Квартира находится в прекрасном состоянии и ждёт своих новых хозяев. Способы оплаты:Наличные, ипотека, материнский капитал, военная ипотека, молодая семья.Гарантируем Вам безопасность проведения сделки :* 2 взрослых собственника* Никаких долгов по коммуналке и обременений.* Вся сумма указывается в договоре.* Все документы готовы к проверке и сделке.* Быстрая и простая сделка.Рады будем ответить на все Ваши вопросы с 9:00 до 21:00Звоните прямо сейчас, чтобы назначить просмотр Квартира в отличном состоянии и по привлекательной цене. Покажем в удобное для вас время.

Читать полностью

    Для того, чтобы купить трехкомнатную квартиру по адресу: Тольятти, Автозаводский, ул. 70 лет Октября, 16, позвоните по телефону +7 (917) 962-94-99. Торопитесь! Объявление №30092992162 о продаже трехкомнатной квартиры опубликовано Вчера.

    Позвонить Написать
    5 950 000 Р76 520 $ или 65 990
    Агент
    +7 (917) 962-94-99
    Начать чат с агентом
    Похожие предложения
    1-к кв. Самарская область, Тольятти ул. Дзержинского, 12 (60.4 м) - Фото 1
    1-к кв. Самарская область, Тольятти ул. Дзержинского, 12 (60.4 м) - Фото 2
    1-комнатная квартира, общая площадь 60м², жилая 19м², кухня 15м²

    Продается евpо-двушка в кирпичном дoме элитной планировки.Кухня-гостиная 15,7 кв.м. и отдельно спальня 19,7 кв.м., просторный коридoр, раздельный сан. узел. Kвapтира очень cветлая и просторная, хорошая шумоизоляция.Сделан ремонт, на полах выложен качественный...
    • 60 м²
    • 1-ком
    • 11/16 эт.
    • кирпичный
    5 900 000 Р
    Агент
    +7 (917) Показать номер
    Посмотреть контакты
    1-к кв. Самарская область, Тольятти ул. Патриотическая, 11А (49.5 м) - Фото 1
    1-к кв. Самарская область, Тольятти ул. Патриотическая, 11А (49.5 м) - Фото 2
    1-комнатная квартира, общая площадь 49м², жилая 17м², кухня 14м²

    Продается просторная 1 - комнатная квартира улучшенной планировки в новом Жилом комплексе Фаворит (напротив 1 квартала Автозаводского района). Дом сдан, заселяется. Ключи передадим в день сделки. О квартире:- функциональная планировка с просторной кухней-столовой;-...
    • 49 м²
    • 1-ком
    • 7/7 эт.
    • панельный
    5 990 000 Р
    Агент
    +7 (987) Показать номер
    Посмотреть контакты
    3-к кв. Самарская область, Тольятти просп. Степана Разина, 87 (64.8 м) - Фото 1
    3-к кв. Самарская область, Тольятти просп. Степана Разина, 87 (64.8 м) - Фото 2
    3-комнатная квартира, общая площадь 64м², жилая 42м², кухня 8м²

    ХОРОШАЯ ЦЕНА для светлой 3-ки на 8 этаже, где много света и воздуха Планировка: общая 64,8 м, жилая 42,2 м. Изолированные комнаты 17,2 / 12,8 / 12,2 м.Кухня 8 м. Лоджия с деревянной отделкой — место для отдыха и растений. Готова к Вашему ремонту.Идеальная...
    • 64 м²
    • 3-ком
    • 8/9 эт.
    • панельный
    6 000 000 Р
    Агент
    +7 (987) Показать номер
    Посмотреть контакты
    2-к кв. Самарская область, Тольятти Приморский бул., 27 (49.5 м) - Фото 1
    2-к кв. Самарская область, Тольятти Приморский бул., 27 (49.5 м) - Фото 2
    2-комнатная квартира, общая площадь 49м², жилая 31м², кухня 9м²

    Продается уютная двухкомнатная квартира площадью 49.5 кв. м, расположенная на 4 этаже 9-этажного панельного дома, построенного в 1985 году. Жилая площадь составляет 31 кв. м, а кухня — 9 кв. м. Высота потолков — 2.51 метра. Окна выходят во двор, обеспечивая...
    • 49 м²
    • 2-ком
    • 4/9 эт.
    • панельный
    6 000 000 Р
    Агент
    +7 (958) Показать номер
    Посмотреть контакты
    1-к кв. Самарская область, Тольятти ул. Патриотическая, 11А (49.54 м) - Фото 1
    1-к кв. Самарская область, Тольятти ул. Патриотическая, 11А (49.54 м) - Фото 2
    1-комнатная квартира, общая площадь 49м², жилая 17м², кухня 13м²

    Продаётся однокомнатная квартира в ЖК Фаворит.Район экологичный и малонаселённый, с отличной локацией. Территория комплекса:Ландшафтный дизайн, благоустроенные прогулочные зоны, парковочные места. В шаговой доступности — школы, детские сады, гипермаркет,...
    • 49 м²
    • 1-ком
    • 7/7 эт.
    • панельный
    5 990 000 Р
    Агент
    +7 (919) Показать номер
    Посмотреть контакты

    Не нашли подходящего объявления?

    Оставьте заявку, и наши риэлторы подберут квартиру в районе Тольятти

    (0)