Реализация объекта недвижимости приостановлена

Информация о квартире

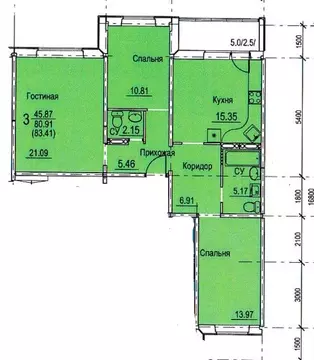
92.0 м2
Площадь
60.0 м2
Жилая
10.0 м2
Кухня
3
Комнаты
5
Этаж
14
Этажность
Развернуть

3-к кв. Самарская область, Тольятти ул. Горького, 41 (92.8 м)

Продается уютная трехкомнатная квартира площадью 92.8 кв. м в панельном доме, построенном в 2020 году. Квартира расположена на 5-м этаже 14-этажного дома. Жилая площадь составляет 60 кв. м, а кухня — 10 кв. м. Потолки высотой 2.5 метра создают ощущение простора. Из окон открывается вид на тихий двор, что обеспечивает спокойствие и уединение.В квартире сделан косметический ремонт, поэтому она готова к заселению. Комнаты светлые и просторные, что позволяет обустроить их по своему вкусу. Кухня оснащена всем необходимым для комфортного приготовления пищи. Санузел раздельный, что особенно удобно для семьи. Лоджия — отличное место для отдыха, где можно наслаждаться свежим воздухом.Дом в хорошем состоянии, в подъезде есть как пассажирский, так и грузовой лифт, что облегчает перемещение. Мусоропровод работает, поэтому можно избавляться от бытовых отходов без лишних хлопот. Район обжитой, поэтому инфраструктура развита: рядом находятся школы, детские сады, клиники и магазины.Благодаря удачному расположению, добраться до любого нужного места не составит труда. Вокруг дома — зеленые зоны, что делает прогулки приятными и полезными. Отличная транспортная доступность: поблизости есть остановки общественного транспорта, что позволит с легкостью добраться до любой точки города.Квартира продается без обременений, все документы в порядке. Возможно приобретение в ипотеку. Это отличный вариант как для семейного проживания, так и для выгодного вложения средств.Не упустите возможность стать владельцем этой замечательной квартиры. Звоните и записывайтесь на просмотр Мы будем рады показать вам ваш будущий дом.

Читать полностью

    Реализация объекта недвижимости приостановлена

    Не нашли подходящего объявления?

    Оставьте заявку, и наши риэлторы подберут квартиру в районе Тольятти

    (0)