2 650 000 Р 34 900 $ или 29 760

Информация об помещении

1
Этаж

Состояние и оснащение

Количество этажей
14
Развернуть
Агент
+7 (987) 817-65-89
Начать чат с агентом

Помещение свободного назначения в Самарская область, Тольятти ул. ...

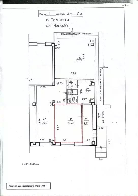
Продается помещение 28,78 кв.м , включающее в себя комнату 21,72 кв.м и МОП площадью 7,06 кв.м Удобное расположение на второй линии, отдельный вход и круглосуточный доступ делают этот объект отличным вариантом для вашего бизнеса. Обеспеченная парковка добавляет комфорт для клиентов.В окружении многоэтажные дома, супер-маркет Миндаль , что способствует постоянному потоку посетителей.

Читать полностью
    Позвонить Написать
    2 650 000 Р34 900 $ или 29 760
    Агент
    +7 (987) 817-65-89
    Начать чат с агентом
    Похожие предложения
    Помещение свободного назначения в Самарская область, Самара просека ... - Фото 1
    Помещение свободного назначения в Самарская область, Самара просека ... - Фото 2
    Номер объекта: 85379Менеджер объекта: Савкина НинаПродаются два нежилых помещения свободного назначения общей площадью 41,7 м2.помещение разделено на две отдельные комнаты по 20,85 м2 с санузлом. В помещениях выполнена предчистовая отделка, произведена...
    • -1/3 эт.
    2 600 000 Р
    Агент
    +7 (917) Показать номер
    Посмотреть контакты
    Помещение свободного назначения в Самарская область, Самара ул. ... - Фото 1
    Помещение свободного назначения в Самарская область, Самара ул. ... - Фото 2
    Продажа помещения свободного назначенияПродажа помещения свободного назначения по ул. Свободы 126А Цокольный этаж- Доступ 24/7- 2 полноценных окна.- Высота потолков 3,2 м- Выделенная мощность 40 Квт.- Отопление индивидуальный котел.- Санузел на этаже-...
    • -1/16 эт.
    2 650 000 Р
    Агент
    +7 (987) Показать номер
    Посмотреть контакты
    Помещение свободного назначения в Тюменская область, Тюмень ул. Мира, ... - Фото 1
    Помещение свободного назначения в Тюменская область, Тюмень ул. Мира, ... - Фото 2
    Без комиссии для покупателя Уважаемые покупатели предлагается к продаже отличный ГАБ.Представляем вашему вниманию отличное помещение коммерческого назначения:- 17,6 кв.м. - отдельно стоящее одноэтажное здание. - своя входная группа.- высота потолка 4...
    • 1/5 эт.
    2 640 000 Р
    Агент
    +7 (919) Показать номер
    Посмотреть контакты
    Помещение свободного назначения в Башкортостан, Уфа Шакша-Южная ... - Фото 1
    Помещение свободного назначения в Башкортостан, Уфа Шакша-Южная ... - Фото 2
    Арт.Продается подвальное помещение свободного назначения. Можно использовать под магазин (рядом конкурентов нет), ПВЗ (рядом конкурентов нет) или на свое усмотрение, например офис, спорт или компьторный клуб, склад и т.д.Рядом детский сад 275 (по ул.Волгоградская),...
    • -1/5 эт.
    2 699 999 Р
    Агент
    +7 (950) Показать номер
    Посмотреть контакты
    Помещение свободного назначения в Калмыкия, пос. Ики-Бурул, 1-й мкр 25 ... - Фото 1
    Помещение свободного назначения в Калмыкия, пос. Ики-Бурул, 1-й мкр 25 ... - Фото 2
    Продается коммерческое помещение с арендаторами в п. Ики-Бурул Объект: Отдельно стоящее здание Все коммуникации: вода, газ, электричество, септик Земельный участок отмежеван Один собственник Готовый бизнес с действующими арендаторами Расположение: Посёлок...
    • 1/2 эт.
    2 800 000 Р
    Агент
    +7 (988) Показать номер
    Посмотреть контакты

    Не нашли подходящего объявления?

    Оставьте заявку, и наши риэлторы подберут псн в районе Тольятти

    (0)