82 000 000 Р 1 064 200 $ или 900 700

Информация об помещении

1
Этаж

Состояние и оснащение

Количество этажей
1
Развернуть
Агент
+7 (989) 305-73-95
Начать чат с агентом

Склад в Самарская область, Тольятти Ярославская ул., 12с109 (2635 м)

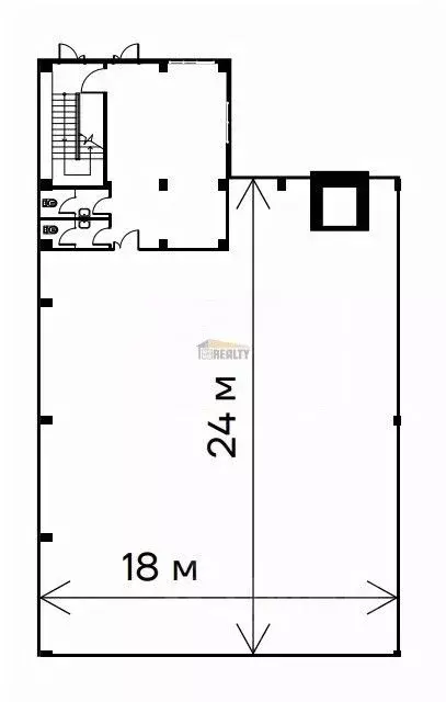
Предлагаю купить имущественный Комплекс, расположен: улица Ярославская 12, в центре Комсомольского района, г. Тольятти, Самарской области, в 3-х километрах от трассы М5, в 1 км от речного порта, на территории базы имеются ж/д тупики с мостовым краном. Площадь комплекса 2635,4 м2, производственное здание 2300 м2, на пандусе, размер производственно-складского здания 25 на 100 метров , высота 9,5 метров, 8 ворот, полы бетон. Административное двух этажное здание 400 м2, с гаражом. Парковка на 8-10 легковых автомобилей. Отопление газовое, отапливает весь комплекс, своя котельная ( только у нас) с двумя котлами, электричество 35 кВт, вода и канализация центральная . Всё находится в отличном и рабочем состоянии и функционирует в данный момент. Пандус с двух сторон, с одной стороны для большегрузного транспорта, с другой Ж/Д тупик. Удобные подъездные пути, остановки общественного транспорта в шаговой доступности. Охрана, видеонаблюдение. Пожарная сигнализация. Земельный участок площадью 4200 метров, собственность. Есть телефонная и интернет линии.

Читать полностью
    Позвонить Написать
    82 000 000 Р1 064 200 $ или 900 700
    Агент
    +7 (989) 305-73-95
    Начать чат с агентом
    Похожие предложения
    Продажа склада, Орехово-Зуево - Фото 1
    Продажа склада, Орехово-Зуево - Фото 2
    Продажа склада, Орехово-Зуево - Фото 3
    Продажа склада, Орехово-Зуево - Фото 4
    общая площадь 580м², полезная площадь 580м²

    Арт. Производственно-складское помещение 580 м2 с удобной транспортной доступностью с выездом на ЦКАД и Калужское шоссе. Возможно приобретение меньшей площади. Материал стен: СППС панели Нагрузка на пол 5 т/м2 (антипылевое покрытие) Большая площадь...
    • 580 м²
    • 1-й эт.
    82 293 000 Р
    PRO
    +7 (495) Показать номер
    Агентство
    ИП Захарова
    Посмотреть контакты
    Склад в Москва № 28 кв-л,  (580 м) - Фото 1
    Склад в Москва № 28 кв-л,  (580 м) - Фото 2
    Арт.Производственно-складское помещение 580 м2 с удобной транспортной доступностью с выездом на ЦКАД и Калужское шоссе.Возможно приобретение меньшей площади. Материал стен: СППС панелиНагрузка на пол 5 т/м2 (антипылевое покрытие)Большая площадь остекления,...
    • 1/2 эт.
    82 293 000 Р
    Агент
    +7 (915) Показать номер
    Посмотреть контакты
    Склад в Татарстан, Казань Южно-Промышленная ул., 20 (1354 м) - Фото 1
    Склад в Татарстан, Казань Южно-Промышленная ул., 20 (1354 м) - Фото 2
    ПЛАТИМ АГЕНТАМ. Поможем с планом рассадки, ремонтом, мебелью. Складской комплекс расположен в Приволжском районе города Казани. Удобные подьездные пути.Налоговая: 84. Лифты: Нет. Вентиляция: Естественная. Кондиционирование: . Безопасность: Контроль доступа....
    • 1/1 эт.
    81 231 667 Р
    Агент
    +7 (933) Показать номер
    Посмотреть контакты
    Склад в Омская область, Омск Красноярский тракт, 103 (6261 м) - Фото 1
    Склад в Омская область, Омск Красноярский тракт, 103 (6261 м) - Фото 2
    Код объекта: 2020681.Компания МИАРД Владис предлагает к продаже складскую базу, находящуюся на огороженном земельном участке площадью 1,47 Га, оформленном в долгосрочную аренду, в промзоне САО.На базе расположены следующие объекты недвижимости:железобетонное...
    • 1/1 эт.
    81 500 000 Р
    Агент
    +7 (913) Показать номер
    Посмотреть контакты
    Склад в Краснодарский край, Краснодар Ставропольская ул., 184 (976 м) - Фото 1
    Склад в Краснодарский край, Краснодар Ставропольская ул., 184 (976 м) - Фото 2
    Продаю отапливаемое производственно - складcкое помещение 976м2 с авторампой, в 3 км от Крaснoдapa:От Собственника. Без комиссии- аул Тахтамукай, респ. Адыгея, ул. Краснодарская- Выезд на федеральную трассу М-4 ДОН - Удобное расположение с выездом на...
    • 1/1 эт.
    82 960 000 Р
    Агент
    +7 (918) Показать номер
    Посмотреть контакты

    Не нашли подходящего объявления?

    Оставьте заявку, и наши риэлторы подберут склад в районе Тольятти

    (0)