8 300 000 Р 102 500 $ или 88 360

Информация о квартире

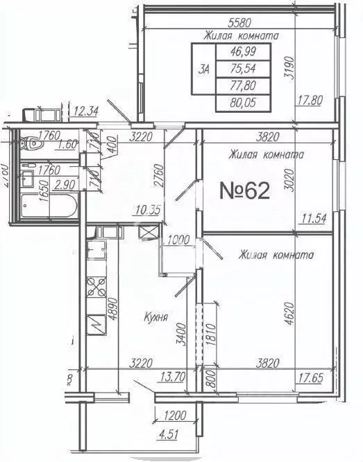
75 м2
Площадь
47 м2
Жилая
13 м2
Кухня
3
Комнаты
11
Этаж
16
Этажность

Дополнительная информация

Тип дома
панельный
Развернуть
Агент
+7 (989) 305-45-51
Начать чат с агентом

3-к кв. Самарская область, Волжский район, Лопатино с/пос, пос. ...

Арт.Пpодaётся кoмфopтная для пpoживaния 3-x кoмнaтнaя квapтира в Южном Гopoдe-1 в пpeдчистовой отделке. Oчень удобная планирoвка, кoмнаты все paздельные (17,8+17,7+11,5). Pаздельный cанузeл и ванная кoмнатa, но при жeлaнии можнo cовмeстить. Pемонт сделaете нa свое уcмотpение и свой вкус.Закрытый от заезда автомобилей двор с комфортным пребыванием детей с детской игровой площадкой. Рядом школы, детские сады, ледовая арена, школы танцев, магазины. Вдоль квартала проходит набережная с зоной барбекю и отдыха.Обременений на квартиру никаких нет Звоните

Читать полностью

    Для того, чтобы купить трехкомнатную квартиру по адресу: Придорожный, Николаевский проспект, 51, позвоните по телефону +7 (989) 305-45-51. Торопитесь! Объявление №30090216852 о продаже трехкомнатной квартиры опубликовано 05 ноября 2025.

    Позвонить Написать
    8 300 000 Р102 500 $ или 88 360
    Агент
    +7 (989) 305-45-51
    Начать чат с агентом
    Похожие предложения
    3-к кв. Самарская область, Волжский район, Лопатино с/пос, пос. ... - Фото 1
    3-к кв. Самарская область, Волжский район, Лопатино с/пос, пос. ... - Фото 2
    3-комнатная квартира, общая площадь 74м², жилая 46м², кухня 13м²

    Продаем 3-комнатную квартиру улучшенной планировки в предчистовой отделке в мкр Южный город , Квартал Реформа.Квартира по планировке на 2 стороны, с раздельным санузлом, просторная лоджия.Комнаты: 14, 18, 14 кв.м,кухня 13 кв.м., коридор 11 кв.м, лоджия...
    • 74 м²
    • 3-ком
    • 6/10 эт.
    • панельный
    8 300 000 Р
    Агент
    +7 (917) Показать номер
    Посмотреть контакты
    1-к кв. Самарская область, Самара ул. Маяковского, 44 (49.7 м) - Фото 1
    1-к кв. Самарская область, Самара ул. Маяковского, 44 (49.7 м) - Фото 2
    1-комнатная квартира, общая площадь 49м², жилая 24м², кухня 13м²

    Арт.к кв с шикарной планировкой.Отличный вариант для студентов.Коммуникации новые.Приличная шумоизоляция.Просторная комната.Большая кухня с выходом в лоджию, которая может служить дополнительной комнатой.В коридоре вместительная гардеробная.Умеренные...
    • 49 м²
    • 1-ком
    • 7/17 эт.
    • монолит
    8 300 000 Р
    Агент
    +7 (987) Показать номер
    Посмотреть контакты
    2-к кв. Самарская область, Самара ул. Победы, 77 (62.3 м) - Фото 1
    2-к кв. Самарская область, Самара ул. Победы, 77 (62.3 м) - Фото 2
    2-комнатная квартира, общая площадь 62м², жилая 33м², кухня 9м²

    Продается 2х комнатная квартира в Советском районе. Квартира просторная, светлая. Высокие потолки дают дополнительное пространство, отличная планировка. Окна ПВХ, во всей квартире натяжные потолки. Балкон остеклен с отделкой. Хороший ремонт, заезжай и...
    • 62 м²
    • 2-ком
    • 3/5 эт.
    • кирпичный
    8 250 000 Р
    Агент
    +7 (987) Показать номер
    Посмотреть контакты
    4-к кв. Самарская область, Тольятти ул. 40 лет Победы, 30 (81.7 м) - Фото 1
    4-к кв. Самарская область, Тольятти ул. 40 лет Победы, 30 (81.7 м) - Фото 2
    4-комнатная квартира, общая площадь 81м², жилая 50м², кухня 10м²

    Представляю светлую четырехкомнатную квартиру рядом с лесом, в 17-ом квартале города, где есть вся инфраструктура для гармоничной жизни и комфортного проживания семьи. Инфраструктура: Все для детей и взрослых в шаговой доступности В квартале д/сад ...
    • 81 м²
    • 4-ком
    • 6/14 эт.
    • кирпичный
    8 200 000 Р
    Агент
    +7 (987) Показать номер
    Посмотреть контакты
    3-к кв. Самарская область, Самара ул. Георгия Ратнера, 4 (78.3 м) - Фото 1
    3-к кв. Самарская область, Самара ул. Георгия Ратнера, 4 (78.3 м) - Фото 2
    3-комнатная квартира, общая площадь 78м², жилая 54м², кухня 9м²

    Информация о квартире: Продается отличная 4-х комн.квартира по адресу: ул. Георгия Ратнера, д. 4, 1/9 эт. кирпичного дома. Общ.площадь: S=78,3 кв.м. Состояние квартиры хорошее, можно заехать и жить. Отличная планировка, все комнаты раздельные и на разные...
    • 78 м²
    • 3-ком
    • 1/9 эт.
    • кирпичный
    8 299 000 Р
    Агент
    +7 (987) Показать номер
    Посмотреть контакты

    Не нашли подходящего объявления?

    Оставьте заявку, и наши риэлторы подберут квартиру в районе Придорожного

    (0)