Реализация объекта недвижимости приостановлена

Информация о квартире

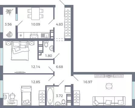
89.0 м2
Площадь
3
Комнаты
10
Этаж
16
Этажность
Развернуть

3-к кв. Самарская область, Волжский район, Смышляевка городское ...

Продаётся 3-комнатная квартира в строящемся доме (Дом 9), срок сдачи: IV-кв. 2026, общей площадью 89.1 кв.м., на 10 этаже. Жилой комплекс Уют-Парк ЖК Уют-Парк -современный жилой комплекс комфорт-класса состоит из семи 9-этажных и двенадцати 16-этажных домов. Преимущества:- Высокое качество строительства домов- Экологически чистый район, близость лесной зоны для прогулок- Благоустроенная территория: прогулочный бульвар, детские и спортивные площадки- Инфраструктура рядом: две школы, детский сад, магазины, физкультурно-спортивный комплекс, арт-объект Колоннада и светомузыкальный фонтан- Выделенные места для парковки автомобилей- В ближайшее время запланировано открытие поликлиники, торгового центра, центральной площади района - масштабного объекта благоустройства с водопадом, кафе и прогулочными бульварами.Уютные холлы - Современный дизайн подъездов выполнен в экостиле, поддерживая идею всего жилого комплекса, перекликаясь с фасадами и оформлением двора- Пол и часть стен в холле выполнены с использованием долговечного керамогранита- Светопрозрачные входные группы обеспечивают наполнение холла естественным светом- Лифт с нулевого этажа создает дополнительное удобство для жильцов- В каждом подъезде на первом этаже расположены колясочные.Квартиры- Проектом предусмотрены варианты разной комнатности: от студий до 1, 2 и 3х-комнатных квартир на выбор- Функциональные планировки позволяют максимально эффективно использовать пространство и рассчитаны на разные потребности будущих жильцов- Два вида отделки: Предчистовая White box : выполнены все капитальные и технические работы, квартира готова для проведения работ по финишной отделке. Чистовая Премиум : выполнен ремонт с использованием качественных материалов в нейтральной цветовой гамме: ламинат, сантехника, межкомнатные двери, керамическая плитка. Данный вариант позволяет сэкономить ваше время и силы, ускорит заселение в квартиру после получения ключей.

Читать полностью

    Реализация объекта недвижимости приостановлена

    Не нашли подходящего объявления?

    Оставьте заявку, и наши риэлторы подберут квартиру в новостройке в районе Стройкерамики

    (0)